Pronájem - kanceláře, 178 m²
Variabilní a světlé kancelářské prostory v prestižním Slovanském domě na Praze 1
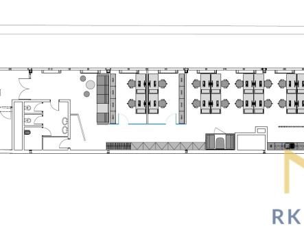
K pronájmu nabízíme velmi vzdušné moderní kancelářské prostory o velikosti 179 m2, situované v 5. patře (6. nadzemním podlaží) Slovanského domu v ulici Na Příkopě, v oblasti Prahy 1 - Nové Město. Prostor umožňuje přizpůsobit interiér potřebám a stylu Vaší firmy – od otevřených kanceláří ve stylu open space, přes menší samostatné místnosti, až po jejich kombinaci. Kancelář disponuje dvěma toaletami a praktickou menší úložnou místností. Dle půdorysu ve fotodokumentaci je možné uspořádat například čtyři zasedací místnosti, jednu větší open-space kancelář a také kuchyňku. Navzdory rušné lokalitě nabízí Slovanský dům klidné pracovní prostředí s moderním zázemím a výhledem do jedinečné zahrady se vzrostlými platany a sochou od renomovaného umělce Federica Díaze. Možnost pronajmout parkovací stání za extra příplatek 350,- EUR/měsíc bez DPH 21%, celkem s DPH 21% = 423,- EUR/měsíc. Lokalita se vyznačuje vynikající dopravní dostupností – v bezprostřední blízkosti se nacházejí stanice metra Můstek (linka A/B) a Náměstí Republiky (linka B), stejně jako několik tramvajových linek v docházkové vzdálenosti. Strategická poloha v samotném centru Prahy zároveň umožňuje snadné napojení na hlavní pražské dopravní tepny a rychlý přístup k nájezdům na D1, D5, D8 i na Pražský městský okruh. Měsíční nájemné činí 22,50,- EUR/m2/měsíc bez DPH = cca. 4.027,-EUR/měsíc bez DPH, celkem s DPH 21% = 4.873,- EUR/měsíc, poplatky 170,- Kč/m2/měsíc = cca. 30.430,- Kč/měsíc bez DPH, celkem s DPH 21% = 36.820,- Kč/měsíc. Požadovaná jistota (kauce) ve výši tří měsíčních nájmů včetně servisních poplatků. Třída energetické náročnosti budovy je dle vyhlášky 78/2013 Sb. klasifikována G.


