Pronájem - kanceláře, 123 m²
Strategický obchodní prostor 123 m² na tepně Žižkova | Přímo u zast. Lipanská
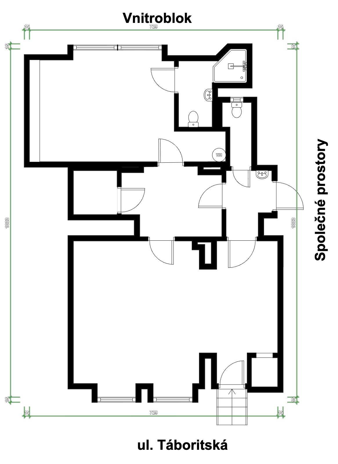
Nabízíme k pronájmu soubor dvou komerčních prostor o celkové dispozici ve dvou podlažích, situovaných v lukrativní lokalitě Praha 3 – Žižkov, ulice Táboritská. Prostory se pronajímají jako jeden funkční celek, ideální pro kombinaci klientské zóny (showroom/prodejna/kancelář) a zázemí (sklad/výroba/archiv). LOKALITA A POTENCIÁL: Nemovitost se nachází na strategickém místě s mimořádnou průchodností! V těsné blízkosti tramvajové zastávky Lipanská. Jde o jednu z hlavních žižkovských tepen zajišťujících vysokou viditelnost a organickou návštěvnost. Okolí tvoří hustá rezidenční zástavba i síť obchodů a služeb. DISPOZICE A TECHNICKÝ STAV: 1. Přízemí (Obchodní část): • Přímý vstup z ulice Táboritská (možnost výlohy/reklamy). • Aktuální kolaudace: Kancelář. • Vybavení: Zavedena plynová přípojka. Vytápění je nutné řešit instalací elektrického kotle. 2. Podzemní podlaží (Zázemí): • Variabilní přístup: Vstup možný přes přízemní prostor (interní propojení) nebo samostatně z hlavního vchodu domu. • Stav: Nadstandardně suché prostory bez známek vlhkosti (vhodné i pro archivaci či skladování citlivého zboží). • Aktuální kolaudace: Sklep. PODMÍNKY A MOŽNOSTI ÚPRAV: Majitel nemovitosti nabízí budoucímu nájemci plnou součinnost při jednání s úřady za účelem změny užívání (rekolaudace) pro specifický podnikatelský záměr. Jedná se o příležitost přizpůsobit prostor přesně na míru vašemu podnikání. PROHLÍDKY: K dispozici kdykoliv po předchozí domluvě. Neváhejte nás kontaktovat pro bližší informace a sjednání termínu prohlídky.


