Prodej - pozemek pro bydlení, 3 309 m²
Stavební pozemek s platným stavebním povolením na dva luxusní rodinné domy.
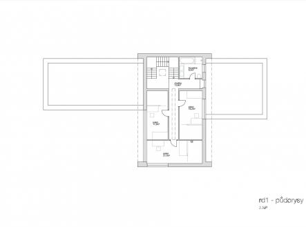
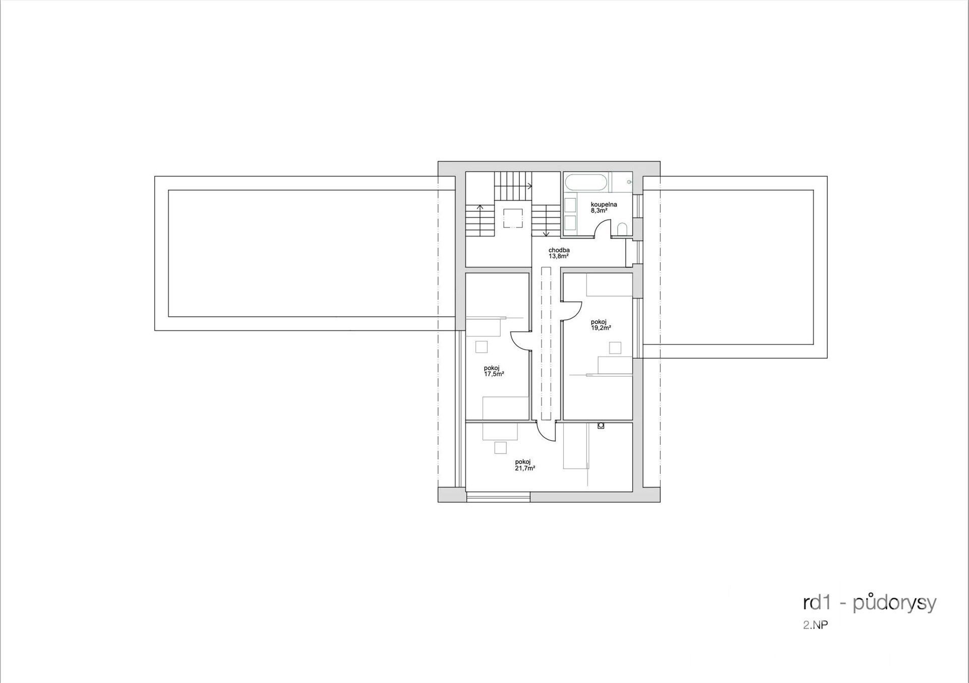
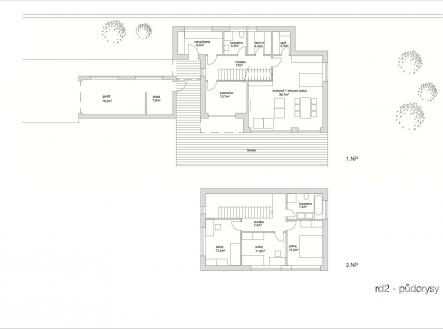
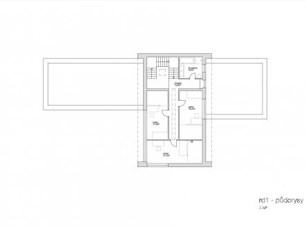
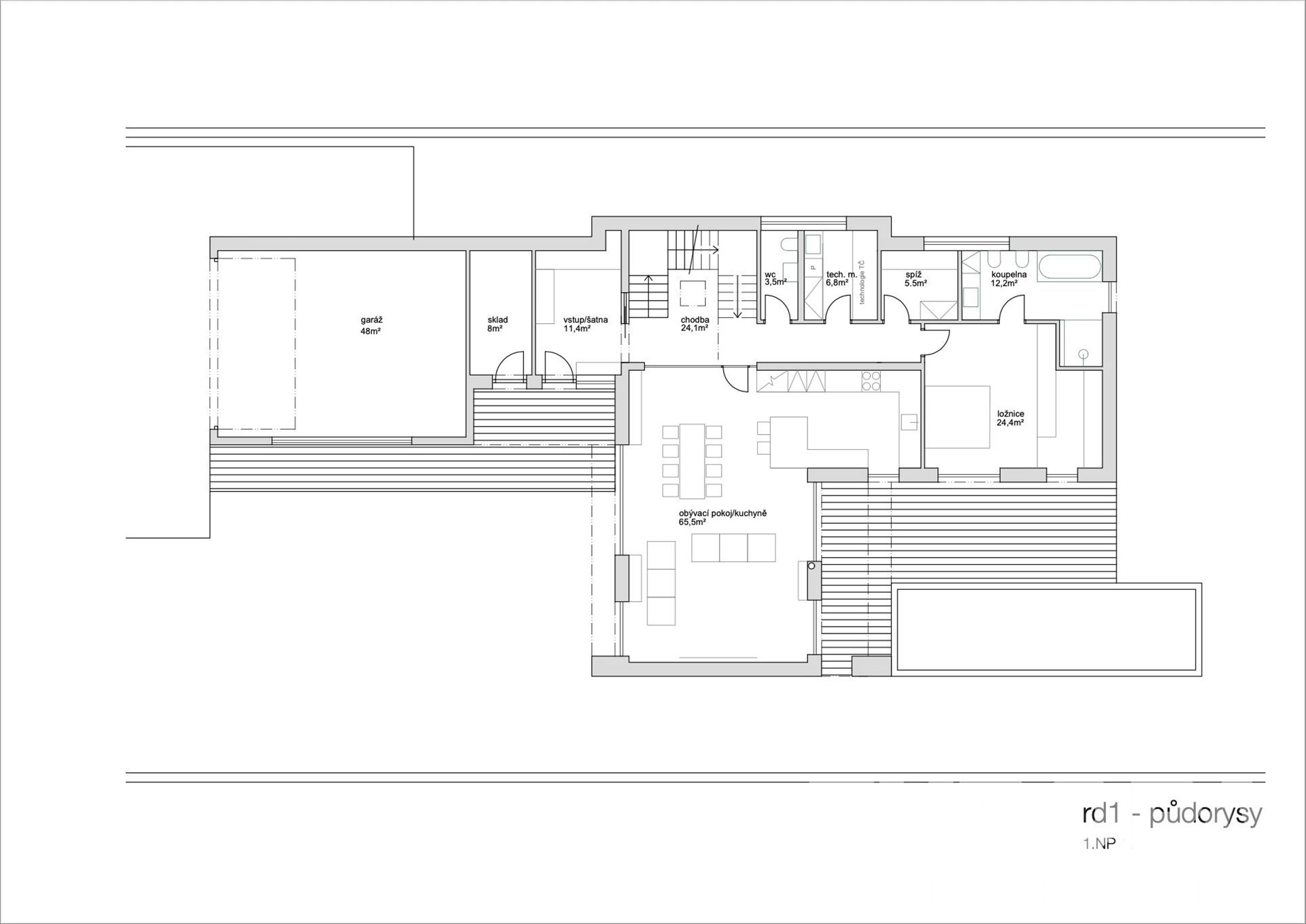
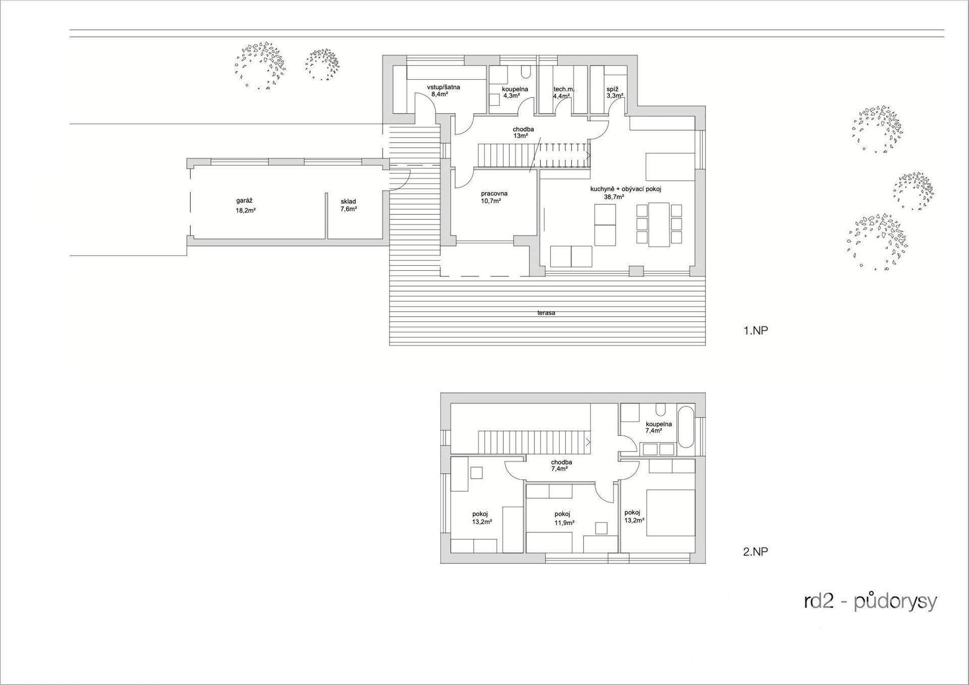
Exkluzivně nabízíme stavební pozemek s platným stavebním povolením na dvě luxusní vily. První o výměře 377 m2, druhá 225 m2. Rozmístění je znázorněno v situaci v grafické části inzerátu. Komplex nabízí unikátní příležitost pro multigenerační bydlení v nejvyšší možné míře komfortu a soukromí. Větší vila nabízí vlastní příjezdovou cestu, dvě garážová stání a venkovní parkování. Dále terasu s bazénem a rozlehlou zahradu. Menší vila nabízí jedno garážové stání a další venkovní parkování. Půdorysy obou vil jsou pouze orientační, dispozice lze pozměnit. Pozemek lze rozdělit a prodat zvlášť odpovídající část pro stavbu jedné z vil. Pro více informací kontaktujte makléře. Horní Počernice jsou velmi prestižní lokalitou pro svoji dostupnost do centra Prahy, přestože jsou na dosah přírodě. Chlubí se veškerou občanskou vybaveností včetně mateřské školy, základní školy a gymnázia. Nemovitost se navíc nachází jen pár minut autem od nákupních center na Černém Mostě. V okolí jsou různá sportoviště, cyklostezky i například golfové hřiště. Konečná cena bez dalších poplatků je 37.498.000 Kč. V případě zájmu, nebo dalších dotazů, neváhejte kontaktovat makléře.


