Prodej - dům/vila, 197 m²
Rodinný dům se zahradou 4+kk se třemi byty 2+kk, 5 x parkovací stání v Praha 8
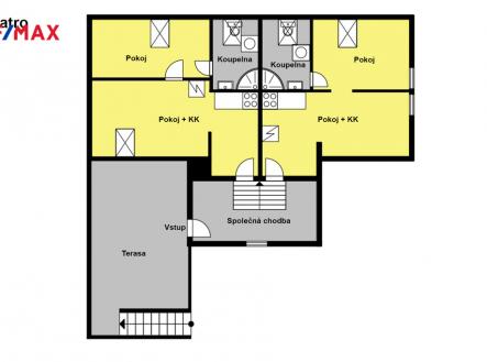
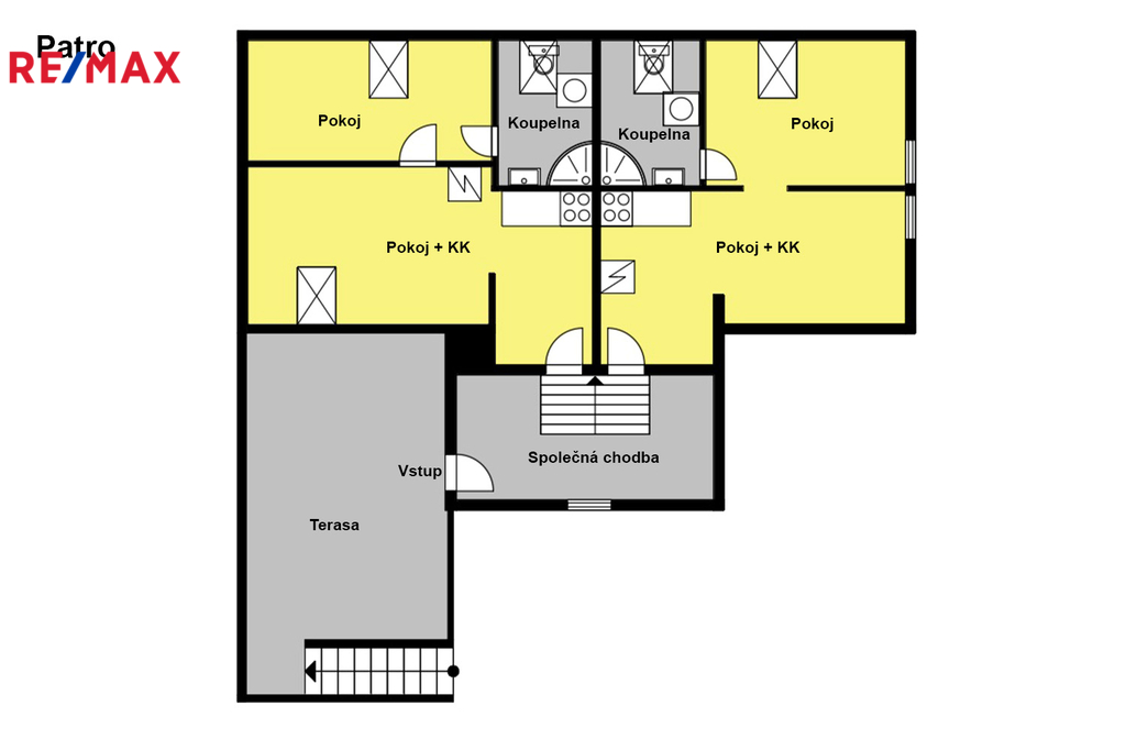
Výhradně pro Vás k bydlení podporující dům pro rodinu 4+kk se třemi samost. byty 2+kk na adrese Legionářů 147/48, Praha 8 na pozemku 661 m2 s pěti parkovacími stáními na nádvoří domu a další parkovací stání na ulici před domem se zahradou o rozloze 303 m2. Dům je z roku 1923 a prošel kompletní rekonstrukcí a změnou dispozice místností, a tak vzniklo více prostoru, soukromí a 3 byty. Zahrada, bezpečná čtvrť pro rodinu s dětmi. Dům má vypracovanou INSPEKCI NEMOVITOSTI. Dům je částečně podsklepený s komorou na potraviny, technickou místností s pračkou, sušičkou a bojlerem zn. DRAŽICE, 2 x pokoj a jedním pokojem pro hosty se samostatným vchodem z nádvoří. Obývací pokoj s oknem do ulice je součástí kuchyně s novou kuchyňskou linkou se spotřebiči, vše součástí domu a ceny. Spotřebiče: americká lednice zn. BEKO, horkovzdušná trouba zn. AEG, mikrovlnná trouba zn. Concept, sklokeramická deska zn. AEG, digestoř zn. Concept. Koupelna s rohovou vanou a sprchovým koutem, WC je samostatné s malým umyvadlem. Podlahy domu jsou plovoucí a kremnická dlažba s podlahovým topením v koupelně a v ostatních místnosti jsou osazeny radiátory. Byty v 2. NP: Společná chodba pro dva byty vedle sebe byt č. 2 o velikosti 2+kk/cca 34,37 m2 s koupelnou se sprchovým koutem a WC, byt má vlastní bojler, el. hodiny, je vybaven spotřebiči (lednice, el. sporák a trouba, digestoř, pračka, mikrovlnná trouba a nábytek). Byt č. 3 o velikosti 2+kk/cca 36,13 m2 se dvěma pokoji a kuchyňským koutem se spotřebiči a samostatnou koupelnou se sprchovým koutem. Byt v přízemí: Byt č. 1 o velikosti 2+kk se samostatným vstupem do bytů z nádvoří domu. Byt je vybaven nábytkem a spotřebiči a má vlastní bojler na ohřev vody a vlastní el. hodiny. Všechny byty a dům jsou vytápěny plynovým kotlem zn. JUNKERS z kotelny a dílny, která má samostatný vstup z nádvoří domu. Byty jsou v současné chvíli pronajaty a zajištují měsíční výnos 65 000 Kč (není ovšem podmínkou, nájemníci jsou s prodejem seznámeni, záleží na preferencích nového vlastníka). Technické informace: Stavba domu je cihlová, zateplená polystyrénem. Okna jsou nová plastová a v 2. NP jsou i nová plastová střešní okna. Střešní krytina s vlnitou novou plechovou krytinou včetně okapů a hromosvodu. Vytápění domu je v kotelně - plynovým kotlem zn. JUNKERS - Přípojka do domu je z 25. 11. 2002. Dům je napojený na kanalizační přípojku a revizní šachtu od 02. 08. 1996. Na pozemku je studna Každý byt a i dům má svůj samostatný bojler na ohřev vody a vlastní elektroměr. Nově rozvody vody v plastu a elektřiny v mědi. Pozemek Zastavěná plocha a nádvoří domu o velikosti 358 m2 je osazeno zámkovou dlažbou a umožňuje vjezd na pozemek přímo z ulice Legionářů Zahrada u domu o velikosti 303 m2 poskytuje klid a útočiště s posezením pod ovocnými stromy vedle zahradního domku. Na pozemku je vlastní studna, kterou majitelé nyní nevyužívají. Ovocné stromy – třešeň, jabloň, švestka Metro C – nejbližší stanice Ládví / Kobylisy, Tramvaj v dosahu, spojení na D8, Bus

