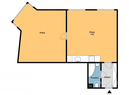
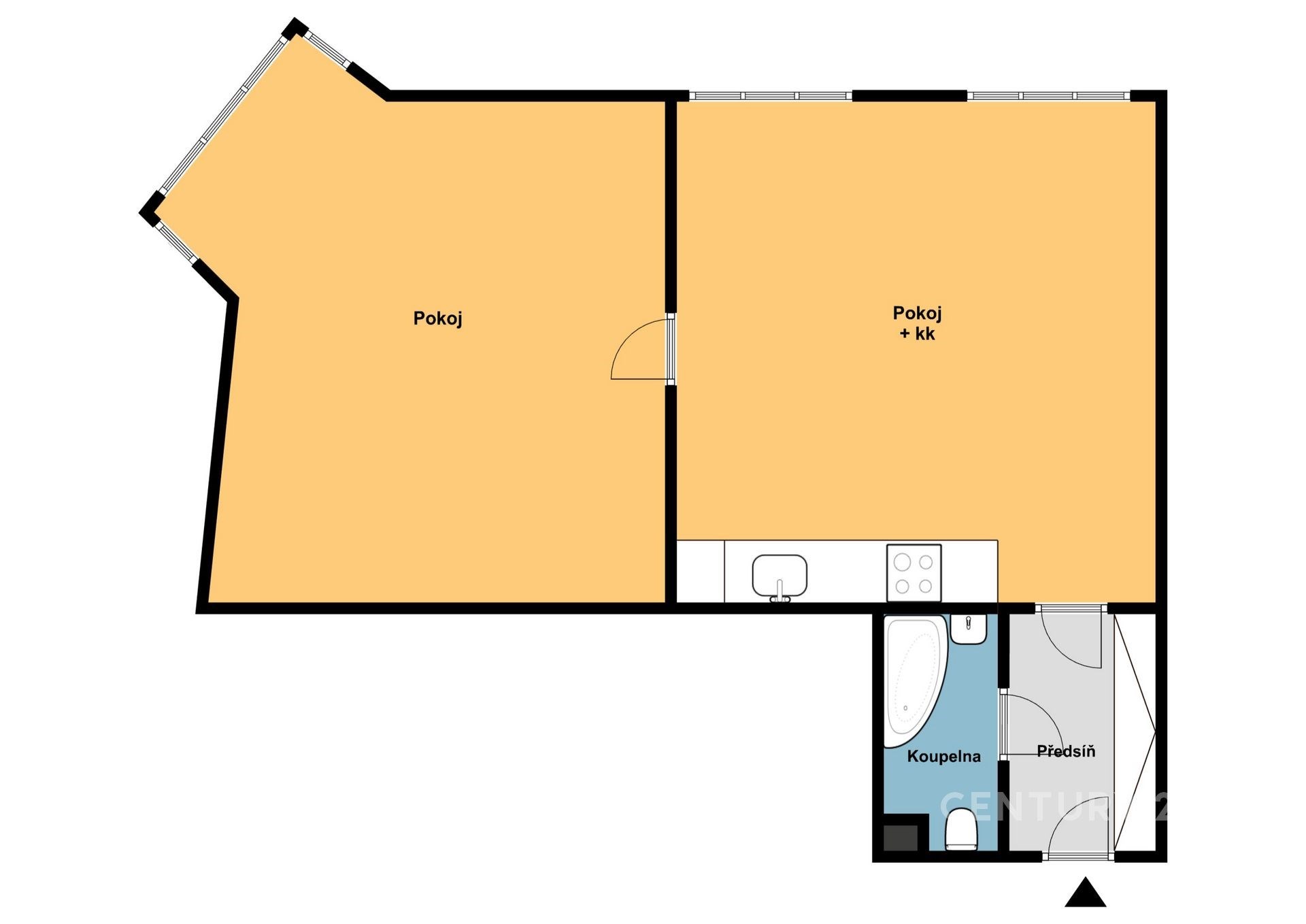
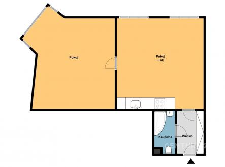
Prodej bytu, 2+kk, 65 m²
Prosvětlený rohový byt 2+kk, 65 m² – rozhraní Vinohrad a Žižkova
Hledáte bydlení, které kombinuje prvorepublikovou eleganci s dynamikou moderní Prahy? Nabízíme vám exkluzivní prodej světlého, prostorného bytu 2+kk o ploše 65 m² (+ sklep 1,5 m²) v atraktivní lokalitě na rozhraní Vinohrad a Žižkova, jen 5 minut chůze od metra A – Flora. Interiér a technický stav: Byt se nachází v 1. patře udržovaného cihlového domu s výtahem. Díky své rohové poloze a orientaci na jihozápad je obývací pokoj po celý den zaplaven přirozeným světlem. Rekonstrukce: V roce 2006 proběhla kompletní výměna rozvodů vody a elektřiny. Před 10 lety byla instalována nová dřevěná špaletová okna. Vybavení: Na podlahách jsou zachovalé dřevěné parkety a keramická dlažba. Kuchyňský kout je plně vybaven spotřebiči (plynový sporák, el. trouba, lednice). Vytápění: Vlastní plynový kotel zajišťuje nezávislost na topné sezóně a kontrolu nad náklady. O domě: Činžovní dům z roku 1928 prochází pravidelnou údržbou. 2021: Oprava střechy a zavedení vysokorychlostního optického internetu. 2023: Instalace moderních digitálních vodoměrů. Lokalita s neopakovatelnou atmosférou: Bydlení na této adrese nabízí to nejlepší z pražského lifestyle: Gastro & Kultura: Desítky vyhlášených kaváren a restaurací všech světových kuchyní v bezprostředním okolí. Oblíbené farmářské trhy na náměstí Jiřího z Poděbrad jsou v docházkové vzdálenosti. Sobotní rána na „Jiřáku“ u farmářských trhů se mohou stát vaším rituálem. Relaxace: Pár minut chůze do Riegrových sadů nebo k Žižkovské věži (Mahlerovy sady). Dostupnost: Metro "A" / zelené metro (Flora) 5 min pěšky, tramvajové spoje v těsné blízkosti. V centru Prahy jste do 7 minut. Vybavenost: OC Flora, lékárny, banky, školy a školky – vše "za rohem". Ekonomika bydlení: Byt se vyznačuje velmi nízkými provozními náklady: Fond oprav (2025): 1 868 Kč Služby: 889 Kč / osoba Celkem: 2 757 Kč + energie Energetická náročnost budovy (PENB) bude doplněna (třída G). Financování: Nákup lze financovat hypotečním úvěrem, se kterým vám v rámci našeho servisu rádi pomůžeme zajistit nejvýhodnější podmínky na trhu. Díky své poloze a dispozici je byt vynikající volbou pro vlastní prestižní bydlení i jako bezpečná investice s vysokým potenciálem pronájmu. Zaujala vás tato nabídka? Přijeďte se přesvědčit osobně. Těším se na vás na prohlídce!


