Prodej bytu, 3+kk, 118 m²
Prostorný klidný byt 3+kk , 2 x terasa, garážové stání, Michle
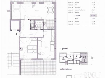
Nabízíme k prodeji byt v osobním vlastnictví o dispozici 3+kk s dvěma terasami, garážovým stáním a sklepem. Celková plocha bytu činí 118,3 m² včetně terasy o velikosti 21,68 m² a druhé terasy o 12,57 m². Byt se nachází v 7. nadzemním podlaží moderního a velmi klidného domu s krásným výhledem do okolí. Obě terasy poskytují dostatek soukromí, větší z nich je nově zrekonstruována a kvalitně izolována. Na patře se nachází pouze dvě bytové jednotky, což zaručuje maximální soukromí. Dům je bezbariérový s čipovým vstupem do objektu i garáže. Upravená společná zahrada ve vnitrobloku nabízí příjemné posezení. Prostorný obývací pokoj je propojen s kuchyňským koutem a má přímý vstup na terasu. Dále jsou k dispozici dvě neprůchozí ložnice, koupelna, samostatné WC a předsíň s dvěma vestavěnými skříněmi. Byt lze jednoduchou úpravou předělat na dispozici 4+kk. Na terasy je přístup jak z obývacího pokoje, tak z ložnic. Kvalitní dřevěné podlahy – v obývací části Wenge, v ložnicích smrkové dřevo. V předsíni vestavěný nábytek na míru. Při rychlém jednání je možné ponechat kompletní vybavení bytu jako bonus. K bytu náleží garážové stání v 1. podzemním podlaží a prostorný, suchý sklep. Dům se nachází v klidné části na rozhraní Vršovic a Michle, v docházkové vzdálenosti od obchodního centra Tesco Eden a stadionu SK Slavia. Výborné dopravní spojení zajišťují autobusové linky, v blízkosti jsou také tramvajové zastávky a veškerá občanská vybavenost.


