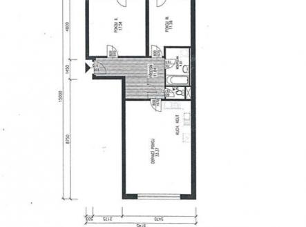
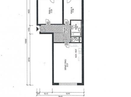
Prodej bytu, 3+kk, 80 m²
Prostorný byt 3+kk se dvěma balkony u Krčského lesa
Objevte svůj nový domov v příjemné lokalitě Prahy Kunraticích vedle IKEM. Nabízíme k prodeji velmi hezký byt 3+kk o obytné ploše 80 m². Byt se nachází v 1. patře zděného domu s výtahem a byl postaven v roce 2002. S ohledem na jeho polohu lze byt užívat jako bezbarierový. Nemovitost disponuje velmi prostornou předsíní s dostatkem úložného prostoru. Obývací pokoj s kuchyňským koutem o celkové výměře 33 m2 poskytuje dostatek místa pro společné setkávání a dvě oddělené ložnice zajišťují soukromí svých obyvatel. Koupelna s vanou je oddělena od WC. Oba balkony otevřené do vzdušného zeleného vnitrobloku dávají možnost příjemné relaxace. Benefitem jsou kvalitní vestavěné skříně v obou ložnicích. Tento dobře dispozičně řešený byt má centrální vytápění a centrální ohřev teplé vody. Okna jsou plastová, podlahy plovoucí a dlažba. SVJ je plně funkční a pracuje velmi dobře, což se odráží na kvalitní údržbě celého domu. Fasáda domu je zateplena a balkony jsou po generální rekonstrukci. Parkovat lze bez problému před domem nebo je možno přenechat nájemní smlouvu na vyhrazené parkovací místo v podzemní garáži. Lokalita je zajímavá nejen blízkostí Kunratického lesa, který je od bytu vzdálen pouhých 100m, ale i velmi dobrou dopravní dostupností, /dvě stanice na metro Kačerov/. Samozřejmostí je veškerá infrastruktura v místě, tedy škola, školka, zdravotní středisko ap. Místo má široké spektrum příležitostí pro osobní, rodinný i profesní život. Tato nabídka spojuje komfort, styl a praktičnost, což je ideální pro každého, kdo hledá kvalitu a spokojenost, doporučujeme prohlídku.


