Prodej bytu, 4+1, 76 m²
Prostorný 4+1 s lodžií a sklepem v klidné části Chodova
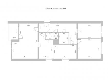
Hledáte prostorné bydlení v klidné části Prahy s možností úprav dle vlastních představ? Nabízíme ke koupi byt o dispozici 4+1, který se nachází ve vyvýšeném přízemí panelového domu v tiché Radimovické ulici na Chodově, Praha 11. Součástí bytu je také lodžie o velikosti 4,3 m² a sklep, ideální pro uskladnění sezónních věcí. Byt je v původním stavu a připraven k rekonstrukci, což budoucímu majiteli otevírá možnost vytvořit si bydlení přesně na míru. Umístění ve vyvýšeném přízemí zajišťuje nejen pohodlný přístup, ale také dostatek soukromí. Výhodou je orientace oken do tří světových stran – na sever, východ a jih – což zajišťuje výbornou světlost bytu po celý den. Pro lepší představu, jak může byt vypadat po rekonstrukci, jsou v galerii k inzerátu připraveny vizualizace navrženého interiéru. Ty mohou sloužit jako inspirace pro vlastní návrh i odhad potřebných investic. Lokalita nabízí kompletní občanskou vybavenost – v docházkové vzdálenosti se nachází školy, školky, obchody, lékárny a další služby. Kromě městské infrastruktury je v okolí také dostatek zeleně. Pouhých pár minut chůze od domu leží Miličovský les a rybník, které vybízejí k procházkám, sportovním aktivitám i odpočinku v přírodě. Výborné je rovněž dopravní spojení do centra Prahy – nedaleko se nachází stanice metra a zastávky MHD, což zajišťuje pohodlné každodenní dojíždění. Kupní cena činí 8.999.000 Kč a zahrnuje právní servis. Byt je možné financovat hypotečním úvěrem, s jehož vyřízením vám rádi pomůžeme. Pokud hledáte klidné bydlení s možností úprav podle vlastních představ v dobře dostupné části Prahy, neváhejte nás kontaktovat pro více informací nebo domluvení prohlídky.


