Pronájem bytu, 3+1, 81 m²
Pronájem zrekonstruovaného cihlového bytu 3+1/komora/balkony, 81m2, OV, cihla, 3.p., nezařízené, Běl
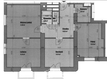
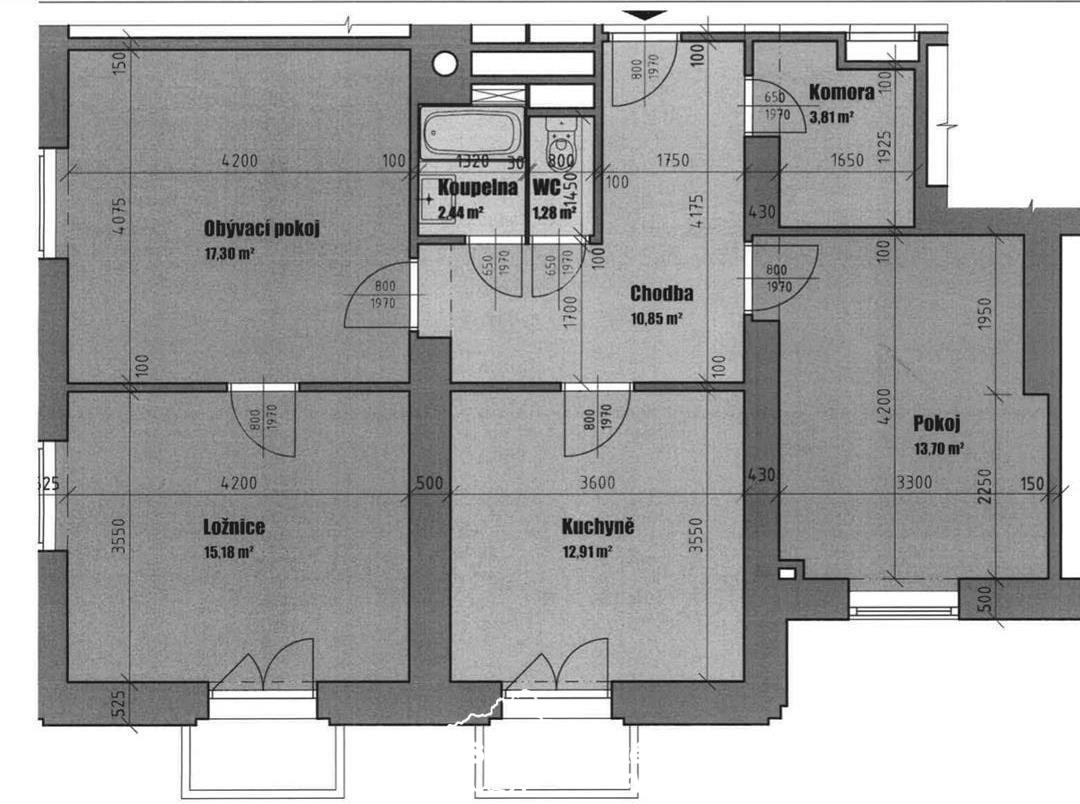
Nabízíme pronájem prostorného, světlého bytu 3+1 o velikosti 81 m2 ve třetím patře s výtahem v udržovaném cihlovém činžovním domě na Praze 10 Vršovice v Bělocerkevské ulici. K příslušenství patří dva balkony (v kuchyni a ložnici), velká komora v bytě, která může sloužit jako sklep, nebo jako pracovna. Dva pokoje ze tří jsou neprůchozí a nabízí možnost spolubydlení. V průchozím obývacím pokoji je zánovní sedací souprava, která je součástí pronájmu. Orientace je na jihozápad - celý den sluníčko. Byt je čerstvě po instalaci nové kuchyňské linky z IKEA s myčkou, elektrickou troubou, plynovou čtyřplotýnkou a novou lednicí s mrazákem. Také je nově vymalováno a došlo k repasi parketových podlah. V koupelně je vana a pračka, wc je samostatné s umyvadlem. Možnost vysokorychlostního internetu. Poplatky jsou uvedené na tři osoby a zahrnují veškeré platby včetně topení a vody + převod elektřiny (cca 1000,-Kč/měs) + plyn (cca 300,-Kč/měs). Za domem je parková úprava s možností posezení, před domem zastávka autobusu s dojezdem na metro A Želivského do pěti minut. Byt je určen k dlouhodobému pronájmu, nastěhování možné ihned.
Středočeské reality, spol. s r.o.


