Pronájem bytu, 3+1, 69 m²
Pronájem zařízeného bytu 3+1 s lodžiíí u Ďáblického háje, Praha 8 - Kaňkovského
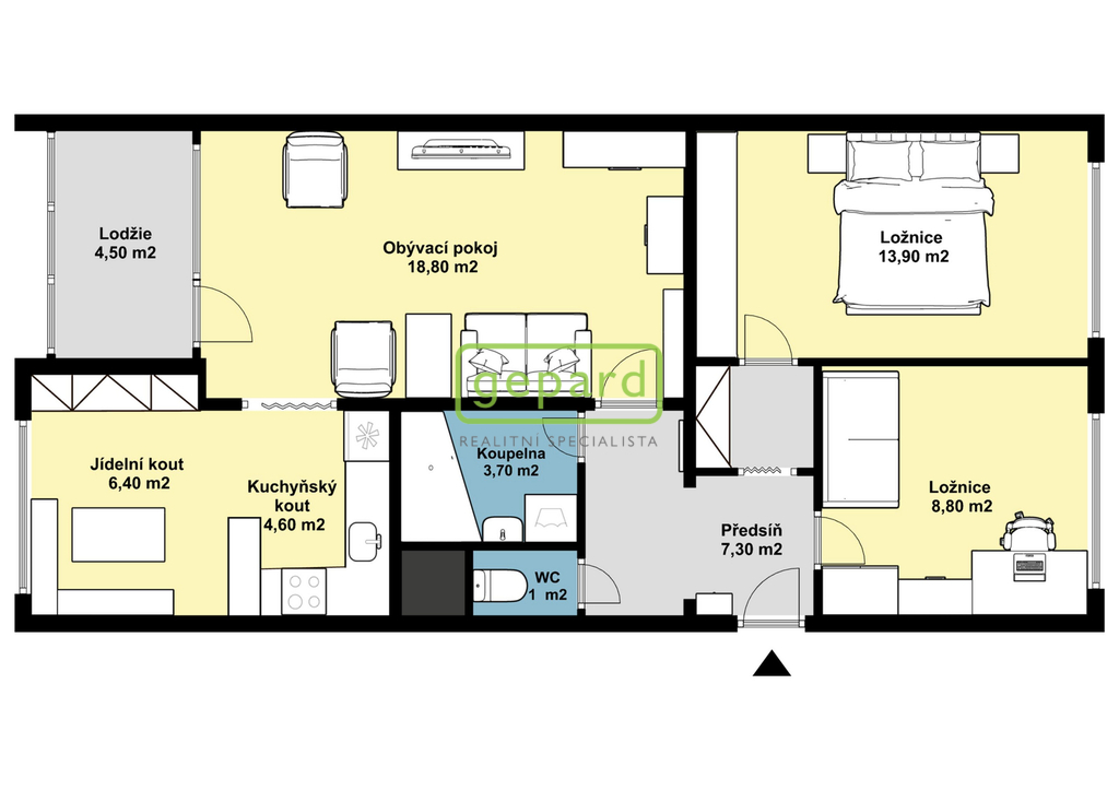
Realitní společnost Gepard Vám nabízí ve výhradním zastoupení majitele k pronájmu byt 3+1 o podlahové ploše 64,4 m2 se zasklenou lodžií o výměře 4,5 m2 v klidné části Kobylis, Praha 8, ulice Kaňkovského. Byt je ve velmi dobrém stavu, koupelna je po rekonstrukci, bytové jádro je zděné. Podlahové krytiny tvoří linoleum, dlažba a koberce. Jsou zde dva samostatné neprůchozí pokoje s výhledem do zeleně o velikostech 13,9 a 8,8 m2. Obývací pokoj měří 18,8 m2, kuchyně s jídelnou 11 m2. Vstupní předsíň s chodbou má 7,2 m2, koupelna 3,7 m2 a samostatná toaleta 1 m2. Dům již prošel revitalizací, jsou vyměněná okna, nová střecha, zateplená fasáda, nový výtah a podlahové krytiny ve společných prostorách. Tepelnou pohodu vylepšují tepelně izolační folie na oknech, na západní straně jsou navíc nainstalované předokenní rolety. Byt se pronajímá s kompletním vybavením, po dohodě s majitelem je však možné některé vybavení odstranit a vybavit vlastním. Přímo před domem se nachází velký park, dětské dopravní hřiště a školka, 250 m začíná ďáblický háj, 100 m od domu koupaliště Ládví které se v zimě změní na veřejné kluziště, 250 m tenisové kurty, 50 m zastávka autobusu, 500 m stanice tramvaje Kyselova, 800 m stanice metra Ládví. Kompletní občanská vybavenost v místě vč. škol, školek, lékáren, zdravotního střediska a nákupních možností. Měsíční nájemné činí 25.000 Kč, zúčtovatelné zálohy na služby 5.500 Kč/2 osoby. Vratná kauce ve výši dvou měsíčních nájmů (50.000 Kč), provize ve výši nájemného vč. služeb (30.500 Kč). Byt je vymalovaný, uklizený profesionální úklidovou firmou a připravený k okamžitému pronájmu. První kolo prohlídek se koná dne 29. 12. 2025. Pro domluvení termínu prohlídky vyplňte odpovědní formulář pod inzerátem nebo pište na uvedený email.


