Pronájem bytu, 2+kk, 63 m²
Pronájem slunného bytu 2+kk – Praha 4, Modřany
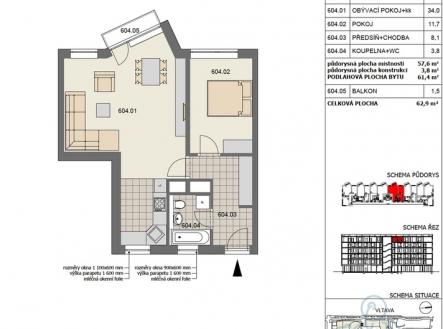
Nabízíme k pronájmu slunný a prostorný byt o dispozici 2+kk a celkové ploše 63 m², který se nachází v oblíbené lokalitě Praha 4 – Modřany. Byt se skládá z předsíně, ložnice, koupelny s vanou a prostorného, světlého obývacího pokoje s kuchyňským koutem, ze kterého je vstup na balkonek. Díky své orientaci je byt velmi světlý a vzdušný. Velkou výhodou je poloha domu přímo u tramvajové zastávky s rychlou a přímou dostupností do centra města. K bytu náleží vyhrazené parkovací stání. Byt se pronajímá bez vybavení a je k dispozici od 1. 4. 2026. Nájemné činí 26 000 Kč měsíčně, zálohy na služby jsou ve výši 3 500 Kč měsíčně, přičemž elektřina se převádí na nájemníka. Požadována je vratná kauce ve výši jednoho měsíčního nájmu a provize rovněž ve výši jednoho měsíčního nájmu.


