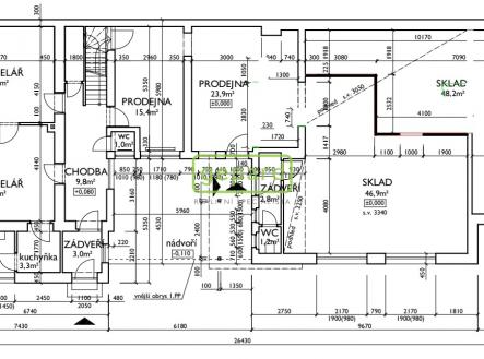
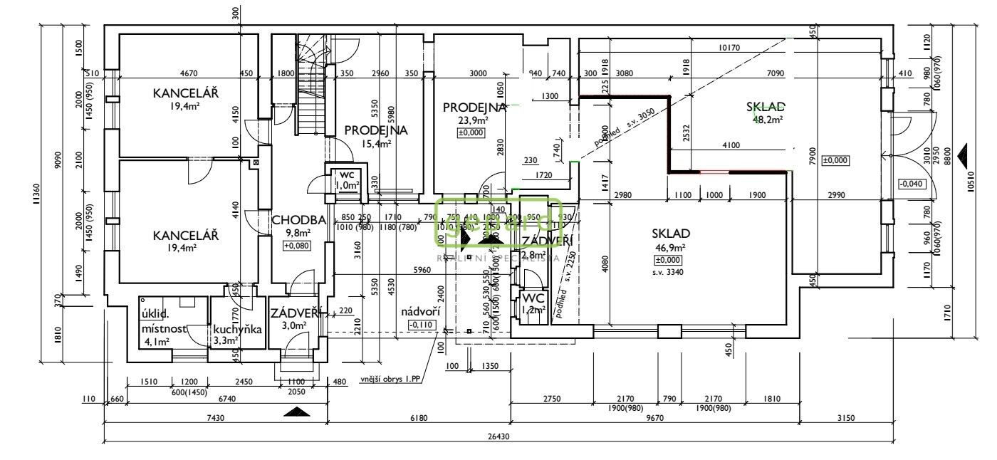
Pronájem - skladovací prostor, 260 m²
Pronájem skladovo administartivní budovy
Realitní společnost Gepard si Vám dovoluje nabídnout k pronájmu skladově-administrativní budovu nacházející se na adrese Zakrytá, Praha 4, Záběhlice. Celková užitná plocha objektu činí přibližně 260 m² a je rozdělena na skladové a kancelářské zázemí, což umožňuje efektivní kombinaci administrativního provozu se skladováním či lehkou logistikou. Objekt je vhodný zejména pro obchodní společnosti, e-shopy, servisní firmy, případně jako zázemí pro menší distribuční centrum. Budova nabízí praktické dispoziční řešení, dobrý přístup pro zásobování a možnost flexibilního využití dle potřeb nájemce. Lokalita zajišťuje dobrou dopravní dostupnost v rámci Prahy a napojení na hlavní dopravní tahy. Technické a provozní parametry: • kombinace skladových a kancelářských prostor • neomezené parkování přímo u objektu • praktické dispoziční řešení umožňující flexibilní využití prostor dle potřeb nájemce • vytápění zajištěno kotlem na LTO • k dispozici kuchyňka • sociální zázemí (WC) V případě Vašeho zájmu Vám rádi poskytneme podrobnější informace, případně domluvíme osobní prohlídku objektu.


