Pronájem bytu, 3+kk, 101 m²
Pronájem prostorného bytu 3+kk s terasou, sklepem a garážovým stáním v rezidenci Tulipa Modřany
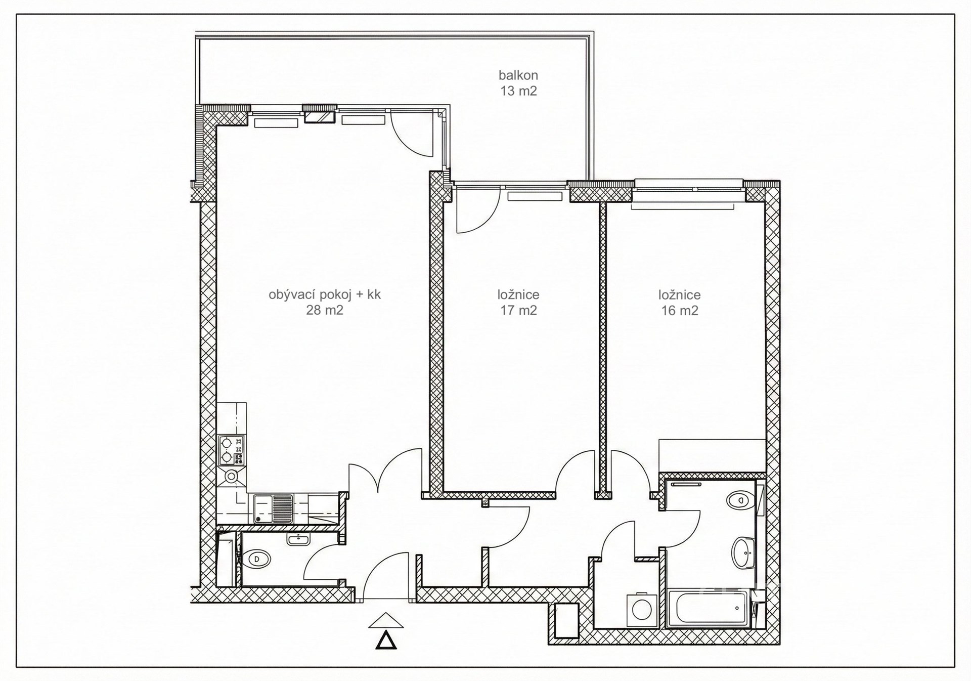
Nabízíme k dlouhodobému pronájmu krásný a prostorný byt 3+kk o ploše 85 m² s terasou 13 m², který se stane vaším skutečným domovem. Byt je situován v prestižním uzavřeném rezidenčním komplexu „Tulipa Modřany“ v Praze 12. Při vstupu do bytu vás uvítá chodba s velkorysým úložným prostorem a praktickou technickou místností. Srdcem bytu je světlý obývací pokoj propojený s kuchyní a jídelnou, který zůstane vybaven komodou pod TV. Prostor přímo vybízí ke společnému trávení času a máte z něj přímý vstup na slunnou terasu orientovanou na jihovýchod – ideální místo, kde si můžete v klidu vychutnat ranní kávu nebo relaxovat během dne. Moderní kuchyň je vybavena kvalitními spotřebiči (lednicí s mrazákem, myčkou nádobí, troubou, indukční varnou deskou a mikrovlnnou troubou), takže vaření pro vás bude radostí. Dispozice bytu je navržena s důrazem na soukromí i pohodlný rodinný život. Rodiče ocení hlavní ložnici s vestavěnou skříní a vlastním vstupem na terasu, zatímco dětský pokoj je již prakticky vybaven vestavěnými postelemi (bez matrací) a úložnými prostory. Velký komfort zajišťuje koupelna, kde si nemusíte vybírat mezi vanou a sprchovým koutem. Ranní provoz pak výrazně usnadní další samostatná toaleta. Byt je vybaven také pračkou. Poznámka k vybavení: Nábytek na fotografiích není součástí pronájmu, pokud není v textu uvedeno jinak. V bytě zůstávají veškeré vestavěné skříně (v chodbě, ložnici i dětském pokoji) a vybavení výslovně zmíněné v popisu inzerce. K bytu samozřejmě náleží garážové stání, sklep o velikosti 3 m² a přímo v domě můžete využívat uzamykatelnou kolárnu. Díky tomu, že je celý areál střežen 24hodinovou ostrahou, kamerovým systémem a recepcí u vchodu, můžete v klidu pracovat z domova s vědomím, že vaše děti si bezpečně hrají na privátním hřišti v parku přímo v areálu. Lokalita Modřany nabízí skvělou kombinaci přírody a dostupnosti. Zastávka tramvaje je přímo u domu (centrum za 25 min) a v bezprostřední blízkosti se nachází MŠ a ZŠ Angel s bilingvním programem a mezinárodní škola Prague British International School, což je skvělé pro rodiny dbající na vzdělání. V okolí najdete lesy, cyklostezky podél Vltavy i plnou občanskou vybavenost. Byt je k dispozici od 1. března 2026. Prohlídky jsou možné od 16. února 2026. Cena nájmu činí 33.000 Kč měsíčně + poplatky cca 6 200 Kč a 1 550 záloha na elektřinu. Vratná kauce na byt je 40.000 Kč. Provize RK je 40.000 Kč. Pro více informací nebo sjednání prohlídky nás neváhejte kontaktovat.


