Pronájem bytu, 2+kk, 87 m²
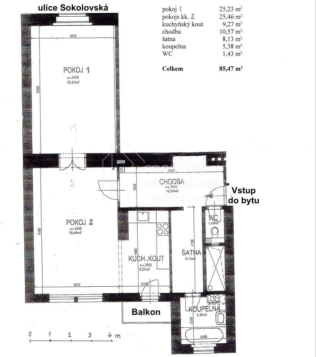
Pronájem prostorného bytu 2+kk, 85 m2 + balkon 2 m2, Praha 8-Karlín, ul. Sokolovská
Ke dlouhodobému pronájmu je Vám k dispozici tento mimořádně prostorný byt 2+kk o ploše 85 m² + balkon 2 m², situovaný v atraktivní lokalitě Praha 8 – Karlín, ulice Sokolovská. Stanice metra Florenc (linky B i C) je vzdálena pouhé 4 minuty chůze. Byt se nachází ve 4. patře (z celkových 5) udržovaného secesního domu s novým výtahem. Obývací pokoj s kuchyňským koutem a vstupem na balkon je orientován na sever do klidného vnitrobloku, ložnice směřuje na jih do ulice Sokolovská. Interiér je světlý a vzdušný díky velkým dřevěným špaletovým oknům a nadstandardní výšce stropů 3,5 m. Koupelna je vybavena vanou a velkým oknem se zachovaným soukromím, toaleta je samostatná. Vytápění a ohřev vody zajišťuje vlastní plynový kondenzační kotel. V obytných místnostech jsou na podlahách parkety, v ostatních částech bytu keramická dlažba. Byt je nabízen jako nezařízený nábytkem (v bytě zůstane velká šatní skříňová stěna). Součástí rohové kuchyňské linky je myčka nádobí, elektrická trouba se sklokeramickou varnou deskou, digestoř a lednice s mrazákem. Pro více informací nebo sjednání prohlídky neváhejte kontaktovat makléře.


