Pronájem bytu, 2+kk, 75 m²
Pronájem prostorného bytu 2+kk, 75 m2, Praha 7 - Holešovice (nezařízený)
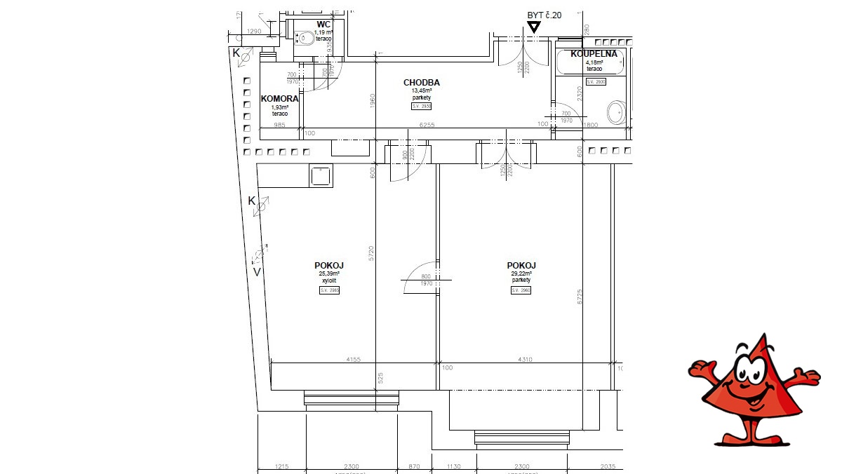
Pronájem neobvykle prostorného světlého bytu o dispozici 2+kk se šatnou ve 4. patře cihlové budovy s výtahem, Praha 7 - Holešovice, ulice Schnirchova. Byt se skládá ze dvou velkých průchozích místností (se samostatnými vchody), vstupní haly, komory/šatny a koupelny s toaletou. V kuchyňské části je kuchyňská linka se spotřebiči (lednice, mrazák, myčka, sklokeramická deska, el. trouba), podlahy z části vinylové, z části renovované parkety, z části dlažba, okna dřevěná. Byt prošel před cca 5 lety kompletní rekonstrukcí. Ohřev vody a topení zajištěny plynovým kotlem. Nezařízeno nábytkem, nad rámec výše uvedených spotřebičů je k dispozici pračka. V pěší dostupnosti veškeré potřebné služby a obchody (přímo v domě Albert), OC Stromovka, park Stromovka, tramvajová zastávka Veletržní palác, ke stanici metra "C" Vltavská a železniční stanici Praha-Bubny cca 500 metrů. Jistota a provize ve výši jednoho nájemného.

