Pronájem bytu, 1+1, 70 m²
Pronájem prostorného bytu 1+1, 70 m2, Praha 1, Staré Město, ulice Dlouhá
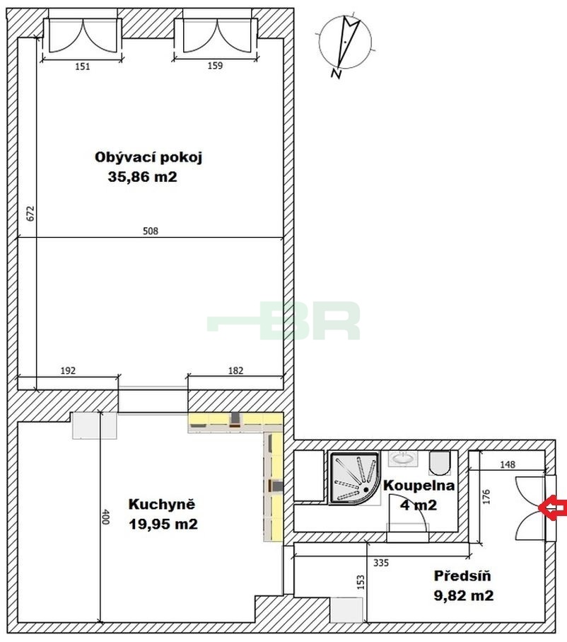
Pronájem prostorného bytu 1+1, 70 m2, v 1. patře cihlového domu, ve skvělé lokalitě, Praha 1, Staré Město, ulice Dlouhá. V bytě nová dřevěná, dvojitá okna, na podlahách v pokoji dřevěné parkety, v kuchyni a předsíni dlažby. Kuchyňská linka včetně spotřebičů, samostaná lednice s mrazákem + samostatný mrazák. Koupelna se sprch. koutem, umyvadlem se skříňkou, toaletou a topným žebříkem. V předsíni vestavěná skříň. V pokoji patro na spaní (5x2 m). V bytě vysoké stropy 3.8 m v obývacím pokoji, 4,25 m v kuchyni. Vytápění el. kotlem, ohřev vody el. bojlerem. Měsíční nájem 21.000,-Kč + 3.000,-Kč služby + elektřina. Kauce 24.000,-Kč. Provize ve výši jednoho nájmu + 21%DPH. Byt je okamžitě k dispozici.


