Pronájem - obchodní prostor, 360 m²
Pronájem obchodního prostoru 360 m² Chrudimská, Praha - Vinohrady
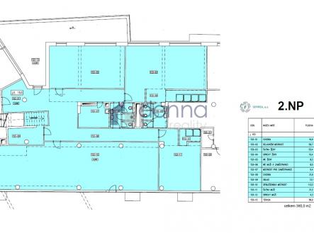
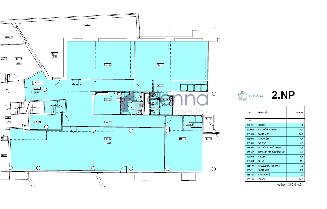
Neplatíte provizi! Nabízíme k pronájmu nebytové prostory s pronajímatelnou plochou o výměře 360 m2. Prostory se nacházejí ve 2.NP s výtahem se vstupem z pasáže objektu AGORA FLORA, která je spojnicí ulice Hradecké a Chrudimské. Nabízené prostory mají okna jak do pasáže, tak i do vnitrobloku a jsou aktuálně využívané jako studio Hot Yogy. Prostory jsou zkolaudovány jako „centrum volného času“, takže jsou vhodné pro aktivity podobného zaměření (yoga, pilates, pohybové aktivity, taneční studio, masáže apod.). Případně lze prostory po úpravě a změně užívání využít i jako kanceláře či zdravotnické zařízení. Technická specifikace prostor: • elektrická energie, přívod teplé a studené vody, • vlastní sociální zázemí • vytápění, chlazení, nucené větrání Vybavení budovy: • ostraha 24/7 • EPS, CCTV • vstup na čipy • možnost pronájmu garážích stání přímo v objektu Komplex má exkluzivní polohu, nachází se v centru Vinohrad, a je výborně dostupný pražskou MHD i autem. Stanice metra A – Flora, tramvajové i autobusové zastávky jsou v bezprostřední blízkosti objektu. Objekt sousedí s ulicí Chrudimskou, Slezskou a Hradeckou, má vlastní pasáž s obchody propojující Chrudimskou a Hradeckou ulici. V objektu se nachází mimo jiné: • prodejna PENNY, • fitness centrum, • kadeřnictví, manikúra, • ordinace lékařů, • restaurace, • kavárna Pronajímatel je připraven: • konzultovat technické požadavky nájemce na úpravu prostor • realizovat stavební úpravy prostor • zajistit projednávání požadovaných změn s dotčenými orgány Zúčtovatelné zálohy na služby a vlastní spotřebu: výše záloh bude stanovena dle typu využití zvoleného provozu. Doba nájmu: minimálně 3 roky. Jistina: 2 x měsíční nájmy (vč. DPH) + 2 x zálohy na služby. Termín počátku nájemního vztahu dle dohody. Neplatíte provizi!

