Pronájem - obchodní prostor, 165 m²
Pronájem obchodního prostoru 165 m² s dvěmi parkovacími místy
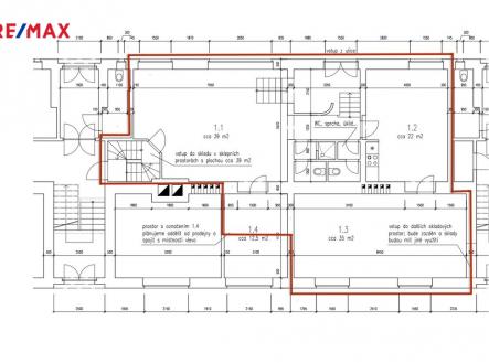
Nabízím k pronájmu obchodní prostory o celkové velikosti 165 m² s dvěmi parkovacímí místy v Horáčkově ulici. Pronajímaný prostor v bytovém domě je využitelný jak pro obchod tak i pro služby, případně jako výdejna a zázemí e-shopu nebo prezentační prostor s kancelářským a obchodním zázemím. Nebytové prostory se skládají ze samostatné místnosti s hlavní výlohou prodejny (provozovny) s přímým vstupem z ulice. Další místností je samostatná kancelář s oknem do ulice, dvě další místnosti mají okna orientována do vnitrobloku. Zázemí sestává z kuchyňky, WC a sprchy. Druhé WC je možné využít pro klienty. Prostorný sklad 39m² pod hlavní částí je přístupný po schodišti. Pro lepší představu doporučuji prohlédnout si virtuální prohlídku , klepněte na modrou ikonu 360 stupňů. Dvě parkovací místa před vchodem a hlavní výlohou je možné využít k vykládce a nakládce zboží, případně pro expedici zásilek. V těsné blízkosti se nachází První jazyková ZŠ v Praze 4, Horáčkova 1100 a volnočasová centra pro aktivity dětí a mládeže. Zvu Vás na prohlídku po telefonické domluvě. Měsíční nájem 44 500,- Kč + 2x parkovací stání x 2 500 Kč = 49 500 Kč Provize RK ve výši jednohoho nájmu = 49 500 Kč + DPH Elektřina a plyn budou přepsány na nájemce Voda se platí zálohově majiteli Ostatní poplatky: 2 000 Kč/měsíc Kauce: dva nájmy Pronajímající si vyhrazuje právo vybrat nájemce na základě jím zvolených kritérií.


