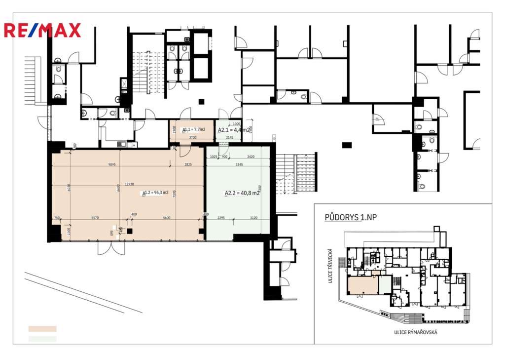
Pronájem - obchodní prostor, 104 m²
Pronájem obchodního prostoru 104 m² – KD Letňanka, ul. Rýmařovská, Praha 9
Chcete mít své podnikání přesně podle vlastních představ? V Kulturním domě Letňanka nabízíme k pronájmu obchodní prostor o výměře 104 m², umístěný v 1. nadzemním podlaží s dobrou viditelností a snadnou dostupností. Prostor je nabízen ve stavu Shell & Core – jako otevřená plocha, kterou si nový nájemce může dispozičně i technicky přizpůsobit svému podnikání. Vhodné využití je například jako prodejna, showroom, služby, studio nebo kancelářské zázemí. Lokalita KD Letňanka nabízí výbornou dopravní dostupnost, parkování v okolí a stabilní pohyb lidí. Nájemné: • 03/2026 – 06/2026: nájemné 0 Kč (nájem zdarma – podpora rozjezdu podnikání) • Od 07/2026: Plátce DPH: 433 Kč/m² bez DPH (celkem 45 032 Kč / měsíc bez DPH, tj. 54 489 Kč vč. DPH) • Neplátce DPH: 476,30 Kč/m² bez DPH (celkem 49 535 Kč / měsíc) Prostor je ideální volbou pro ty, kteří hledají flexibilní řešení bez kompromisů a chtějí si vytvořit provoz přesně na míru – na adrese, která má své jméno. V případě zájmu o více informací nebo domluvení prohlídky mě neváhejte kontaktovat.


