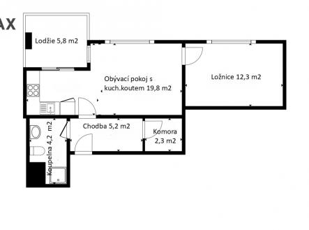
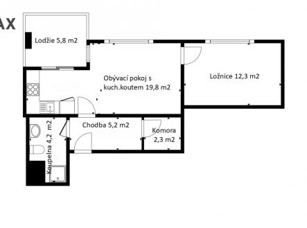
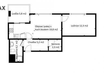
Pronájem bytu, 2+kk, 43 m²
Pronájem nového bytu 2+kk v ikonickém projektu Nuselský pivovar – lodžie, garáž, sklep
Hledáte bydlení, které má styl, energii a všechno důležité doslova pár kroků od dveří? V novostavbě projektu Nuselský pivovar nabízíme k pronájmu krásný, ještě neobývaný byt 2+kk o velikosti 43,7 m² s prostornou lodžií (cca 6 m²) ve 3. NP. Byt působí svěže a čistě — je připravený stát se vaším novým místem k životu. K dispozici je moderní kuchyňská linka s velkým úložným prostorem, plně vybavená vestavěnými spotřebiči zn. Beko (lednice s mrazákem, myčka, trouba s varnou deskou, mikrovlnná trouba). Jinak je byt nezařízený, takže si ho můžete doladit přesně podle svých představ. V bytě jsou dřevěné podlahy a v dohledné době budou dodělány venkovní žaluzie. V koupelně je sprchový kout. Součástí pronájmu je také garážové stání a velký sklep, což je v této lokalitě obrovská výhoda. Nuselský pivovar je výjimečné místo, které si vás získá hned při první návštěvě. Stylová kavárna, dětské hlídání, fitness, obchody i služby — to všechno vytváří pocit komunity a přináší pohodlí při bydlení. Lokalita má skvělou dostupnost MHD. Byt je okamžitě k nastěhování. Neplatíte provizi RK. Nájemné: 28 500 Kč Zálohy na poplatky pro 2 osoby: 4 500 Kč + elektřina bude přepsána na nájemce Vratná kauce: 50 000 Kč


