Pronájem bytu, 3+1, 70 m²
Pronájem nově zrekonstruovaného bytu 3+1 v Braníku, ideální pro rodinu
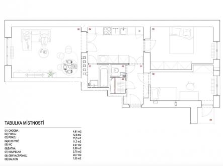
Nabízíme k pronájmu nádherně zrekonstruovaný rodinný byt 3+1 o výměře 70 m² v oblíbené a klidné části Prahy 4 – Braník, ul. Na Mlejnku 10. Byt se nachází v komorním činžovním domě a je ideální zejména pro rodinu, která ocení klid, soukromí a skvělé okolí pro děti i aktivní životní styl. Interiér prošel kompletní renovací – majitel si dal záležet na detailech. Na podlahách jsou krásné parkety, nová kuchyňská linka nabízí plno úložného prostoru, koupelna s vanou je designově sladěná a WC je oddělené. Obě ložnice jsou orientované do vnitrobloku (jedna má balkon, druhá velkou vestavěnou skříň), obývací pokoj je směrem do ulice. Braník je vyhledávaná rezidenční čtvrť s výborným zázemím pro rodiny — v docházce jsou školky, školy, dětská hřiště, pošta, lékárna, menší obchody i supermarket, kavárny i restaurace. Tramvajová zastávka Nádraží Braník je cca 4 min pěšky, do centra (Karlovo náměstí) zhruba 17 minut. Výjimečná je možnost sportu a relaxu — podél Vltavy vede cyklostezka směrem na Vrané, trasy pro in-line brusle, běh, kolo, beach volejbal, workout zóny i loděnice. Kolik to bude stát? Měsíční nájemné 31.700 Kč + zálohy na služby ve výši 5.786,-Kč (teplo, voda, odpady, svoz odpadu apod.) + přepis odběru elektřiny na Nájemce. Kauce ve výši 50.000,-Kč, provize ve výši jednoho měsíčního nájmu. Koho hledáme? Slušné nájemce, ideální pro rodinu, nebo pár, případně spolubydlení. Od kdy je byt volný? Byt je volný k nastěhování ihned. Rád vás pozvu na osobní prohlídku.


