Pronájem - obchodní prostor, 526 m²
Pronájem nebytových prostor – 526 m², Hybernská 32, Praha 1 – Nové Město
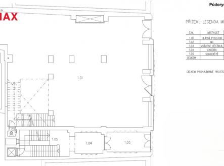
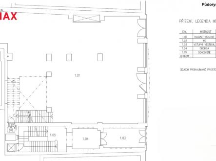
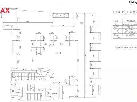
Nabízíme k pronájmu reprezentativní nebytové prostory ve vyhledávané lokalitě centra Prahy, ulice Hybernská 32, Praha 1 – Nové Město, v bezprostřední blízkosti Masarykova nádraží, Florentina, Bílé labutě a Náměstí Republiky. Prostory se nachází ve dvou podlažích – 1. nadzemní (260 m²) a 1. podzemní (266,4 m²), celkem tedy 526,4 m². Objekt má samostatné vstupy z ulice z hlavní ulice. Vhodné pro široké spektrum využití – gastronomii, showroom, studio, kanceláře, služby či kombinované provozy. Hlavní parametry nabídky: • Celková plocha: 526,4 m² o 1NP: 260 m² (nájem 550 Kč/m²) o 1PP: 266,4 m² (nájem 225 Kč/m²) • Měsíční nájemné: 202.940 Kč + DPH • Služby a provozní náklady: 100 Kč/m²/měs. + DPH • Depozit: cca 900.000 Kč (3× nájem + 3× služby vč. DPH) • Možnost vyjednat pronájmové prázdniny (2–4 měsíce) • Indexace nájemného podle inflace (ročně) • Doba pronájmu: dlouhodobě – 10 let Stav a technické informace: Prostory budou předány ve stavu shell & core – veškeré úpravy a vybavení provádí nájemce na vlastní náklady. Objekt disponuje novými přípojkami – voda, topení, elektroinstalace, klimatizace. Konečné rozvody a zařízení zajišťuje výhradně společnost Finox podle schváleného projektu. Na technickém podlaží se nachází nová VZT jednotka dimenzovaná pro kapacitu až 302 osob, moderní plynová kotelna a nové venkovní jednotky klimatizace připojené ke každému podlaží (vnitřní rozvody si řeší nájemce). Veškeré stavební a instalační zásahy vyžadují souhlas majitele. Kolaudaci zajišťuje nájemce samostatně, na základě plné moci majitele. Lokalita a dopravní dostupnost: • Pěší dostupnost: 3 min. od Masarykova nádraží, 5 min. od metra B (Nám. Republiky), tramvaje č. 3, 5, 6, 14 • Občanská vybavenost: banky, kavárny, restaurace, obchodní centra, hotely • Prestižní komerční lokalita s vysokou frekvencí pěšího provozu • V okolí sídla firem, coworkingy, školy i státní instituce Pronajímající si vyhrazuje právo vybrat nájemce na základě jím zvolených kritérií.


