Pronájem bytu, 1+kk, 34 m²
Pronájem moderního bytu 1+kk v klidné části Prahy 5
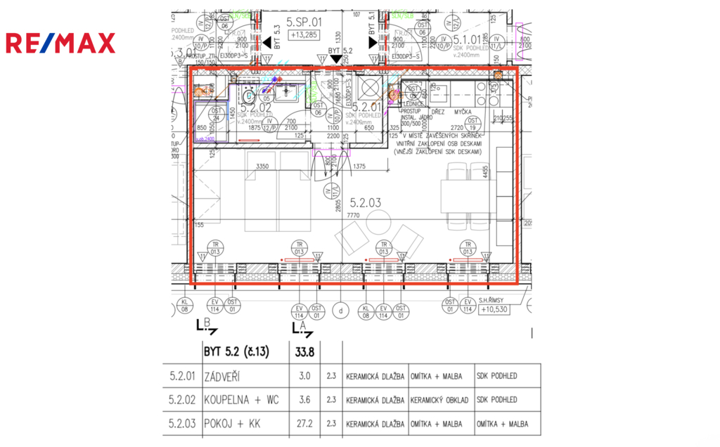
K dlouhodobému pronájmu nabízím nově zrekonstruovaný byt 1+kk o ploše 33,8 m², jenž je umístěný v 5. nadzemním podlaží nově zrevitalizovaného cihlového domu s výtahem v ulici Musílkova, v oblíbené části Prahy 5 - Košíře. Dům prošel kompletní rekonstrukcí včetně moderní kotelny (2026) a nabízí celkem 16 nájemních jednotek (14 bytů a 2 ateliéry) navržených s důrazem na moderní, komfortní a dlouhodobé bydlení. Nastěhování je možné od března 2026. Dispozice bytu (5.2.) zahrnuje vstupní chodbu se skříní, která zajišťuje základní úložný prostor a přípravou na pračku, designovou koupelnu se sprchovým koutem, umyvadlem s koupelnovou skříňkou, WC. Z chodby se vstupuje do prostorného světlé pokoje s kuchyňským koutem, jenž disponuje moderní kuchyňskou linkou se spotřebiči - lednicí s mrazákem, troubou, indukční varnou deskou, myčkou, dřezem a digestoří. V obývací části je instalována klimatizace i elektrické předokenní rolety, které zvyšují komfort bydlení po celý rok. Internetové připojení je řešeno přes O2 / CETIN, v bytě jsou připravené datové zásuvky. Okna jsou trojskla, tudíž zaručují velmi dobrou izolaci. Topení v obývací části bude osazené v nejbližších dnech. Finanční podmínky: Nájemné = 20 100 Kč / měsíčně. Zálohy na služby = 1 osoba = 2.000,- Kč / měs., 2 osoby = 3.000,- Kč / měs. Elektřina se převádí na nájemce. Jistota (kauce) ve výši 25 000 Kč. Rezervační platba/provize = 24 321,- Kč. Bytový dům se nachází v klidné a zelené části Košíře, která je vyhledávaná pro svou příjemnou atmosféru a výbornou dopravní dostupnost. V okolí je kompletní občanská vybavenost - obchody, kavárny, restaurace i ostatní služby. Autobusová zastávka "Pod Školou" je do 5 min. chůzí, tramvajová zastávka "Kavalírka" je do 10 min. chůzí od domu a díky tomu se během několika minut pohodlně dostanete do centra města i na stanici metra =B= Anděl. Rád se s Vámi setkám na prohlídce bytů.


