Pronájem - kanceláře, 532 m²
Pronájem moderních kanceláří v Praze Karlíně.
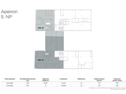
Nabízíme k pronájmu flexibilní kancelářské prostory v moderní administrativní budově Apeiron, situované v atraktivní lokalitě Prahy Karlína. Budova disponuje 12 300 m² pronajímatelné plochy, která pojme až 770 pracovních míst. Vynikající dopravní dostupnost: 2 minuty chůze ke stanici metra B – Křižíkova, tramvajová zastávka ve stejné vzdálenosti. Podzemní garáže a 175 parkovacích míst. Centrální recepce a 2 bezbariérové vstupy do budovy. Optický internet přivedený do patrových rozvaděčů. Možnost flexibilního uspořádání kanceláří. Moderní vybavení: snížené podhledy se zabudovanými světly, obvodové vedení sítí, podlahové kanály. Otevíratelná okna a venkovní žaluzie. Klimatizace pro maximální komfort. Dostupné kancelářské jednotky: 3. NP 532 m² – 17 EUR/m² – k dispozici od 3/2026 1 034 m² – 17 EUR/m² – k dispozici od 3/2026 4. NP 964 m² – 17 EUR/m² – k dispozici od 3/2026 5. NP 342 m² – 16,50 EUR/m² – k dispozici ihned 497 m² – 17 EUR/m² – k dispozici od 3/2026 7.NP 544 m² – od 17 EUR/m² – k dispozici od 3/2026 (možná dělitelnost: 317 + 227 m²) Služby: služby budovy: 110 Kč/m² parkování: 140 EUR/měsíc. Možnost individuálního jednání o rozšíření pronajímané plochy Budova Apeiron byla postavena v roce 2000 a v roce 2019 prošla kompletní rekonstrukcí. V roce 2023 byl rozšířen kamerový systém vjezdu/výjezdu na SPZ a na střeše budovy byly instalované včelí úly. V případě zájmu o prohlídku či další informace nás neváhejte kontaktovat!


