Pronájem - dům/vila, 360 m²
Pronájem luxusního rodinného domu 7+kk (360 m2), Praha 6 - Nebušice, ul. Ke Strži
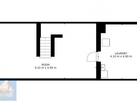
K dlouhodobému pronájmu nabízíme velice pěkný rodinný dům 7+kk s užitnou plochou 360 m2 se zahradou. Jedná se o samostatně stojící rodinný dům na pozemku o celkové ploše 860 m2, v žádané a klidné lokalitě Prahy 6 - Nebušice. Dům nabízí 2 nadzemní podlaží, jedno podzemní podlaží se zázemím a samostatně stojící garáž pro 2 automobily. V přízemí domu se nachází zádveří, vstupní hala, dále velmi prostorný a světlý obývací pokoj, volně navazující na jídelní část a plně vybavenou, moderní kuchyni. K dispozici je také pokoj/pracovna, samostatná toaleta, vstup do sklepa, šatna u zádveří s vestavěnou skříní, koupelna s rohovou vanou (jacuzzi). Ve 2. nadzemním podlaží se nachází hala, vstup na terasu 15 m2, dále 5 ložnic, dvě z nich mají k dispozici společnou koupelnu se sprchou a toaletou, jedna z ložnic má vstup na balkon. Další samostatná koupelna se sprchou a toaletou v patře. K dispozici také šatna, vybavena vestavěnými skříněmi po obou stranách. Sklep nabízí variabilní využití - pracovna, herna, tělocvična, dále zahrnuje technické zázemí - plynový kotel na vytápění domu, prádelna. V domě jsou na podlahách dřevěné podlahy, v kuchyni a koupelnách dlažba. Parkování v garáži (2 auta), další parkování na pozemku. Dům je zabezpečen alarmem s možností napojení na PCO. Velmi pěkné moderní, rodinné bydlení. V docházkové vzdálenosti se nachází občanská vybavenost, mezinárodní škola International School of Prague, základní škola, obchod, v těsné blízkosti parku Divoká Šárka. Platba nájemného kvartální, kauce ve výši tří nájmů. Dům je volný k nastěhování ihned, doporučujeme jeho prohlídku.


