Pronájem bytu, 2+kk, 91 m²
Pronájem luxusního bytu 2+kk, 91 m² – Mánesova, Praha 2 – Vinohrady, možnost parkování přímo v domě.
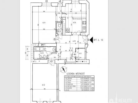
Nabízíme k pronájmu reprezentativní, prostorný byt 2+kk o ploše 91 m², situovaný ve 4. nadzemním podlaží kompletně zrekonstruovaného rezidenčního domu na vyhledávané adrese Mánesova 32, v samém srdci královských Vinohrad – mezi náměstím Jiřího z Poděbrad a náměstím Míru. Byt je nezařízený, což umožňuje budoucímu nájemci přizpůsobit si interiér dle vlastního vkusu. Součástí vybavení je moderní kuchyňská linka se sporákem, mikrovlnnou troubou, myčkou nádobí, lednicí a mrazničkou. Koupelna i obytné prostory jsou ve vysokém standardu. Pračka není součástí vybavení. Vytápění zajišťuje vlastní plynový etážový kotel, v bytě je instalován elektronický zabezpečovací systém. Parkování je možné za poplatek v garážích přímo v domě, které jsou řešeny ve třech podlažích pomocí autovýtahu. Garáže jsou střeženy kamerovým systémem. Dům nabízí nadstandardní úroveň bezpečnosti a komfortu: osobní výtah výtah pro automobily elektronický zabezpečovací systém napojený na PCO kamerový systém s dlouhodobou archivací elektronický požární systém v garážích rozvody vysokorychlostního internetu, TV, satelitu a telefonu Velkým benefitem je společná terasa se zahradou, umístěná v klidné dvorní části objektu na střeše garáží – ideální místo pro relaxaci v centru města. Energetická náročnost budovy: třída D. Finanční podmínky: Měsíční nájem: 26.000 Kč Zálohy na služby: 5.000 Kč (včetně plynu a elektřiny) Internet: 400 Kč / měsíc (volitelné) Parkovací stání: 4.000 Kč / měsíc včetně služeb a DPH Provize RK: 1× měsíční nájem + DPH Nelze domácí mazlíčky.


