Pronájem bytu, 2+1, 91 m²
Pronájem luxusně zařízeného designového bytu 2+1 s vysokými stropy 91m2 s lodžii - Bubeneč, Praha 6.
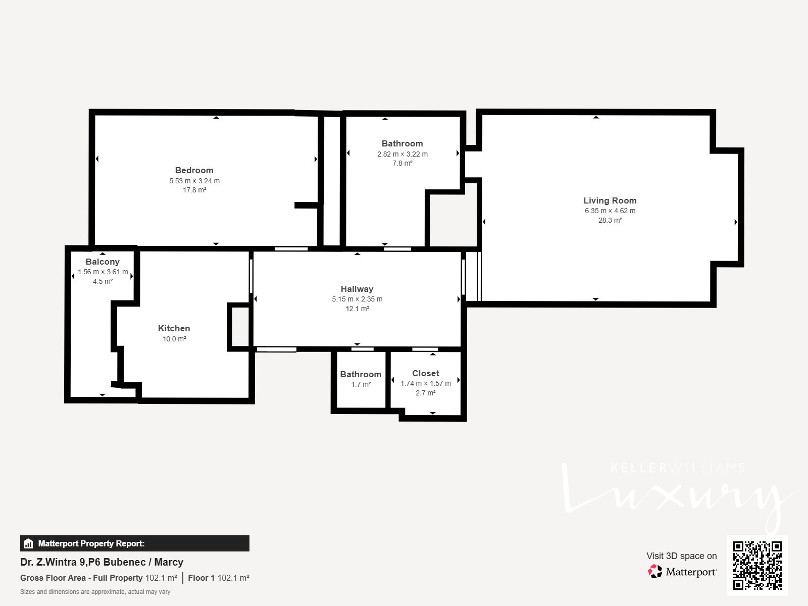
Ve výhradním zastoupení majitele nabízím k pronájmu exkluzivní byt ve vyhledávané lokalitě Bubeneč, která se pyšní skvělou dopravní dostupností a veškerou občanskou vybaveností. Výsledný luxusní interiér prošel předtím kompletní rekonstrukcí pod vedením interiérové designérky, která věnovala maximální pozornost detailům a vytvořila prostor plný elegance, komfortu a originality – inspirovaný stylem bydlení v New Yorku. Vysoké stropy dodávají bytu vzdušnost a jedinečnou atmosféru. Dispozice bytu byla navržena s ohledem na maximální funkčnost a komfort. Všechny pokoje jsou neprůchozí. Prostorný obývací pokoj, který zahrnuje jak jídelní část se stolem pro 6 lidí a relaxační část pro posezení v křeslech u kávy anebo na rozkládací pohovce nejvyšší kvality u televize, která je připravená pro vaši případnou návštěvu na přespání. Celou atmosféru umocňuje dekorační krb, nástěnná svítidla a elegantní šestiramenný lustr. Elegantní ložnice je s klimatizací a je vybavená designovou luxusní manželskou postelí s vysokými matracemi, nočními stolky s krásnými svítidly. Knihovna naproti posteli poskytuje dostatek prostoru pro uložení knih, fotek i dokumentů ve spodních skřínkách. Zde je umístněná i TV. Kosmetický stolek se zrcadlem, lampou a pohodlným křeslem, je další bonus v této prostorné ložnici. Úložné prostory jsou schované ve velké vestavné skříni. Samostatná kuchyň je plně vybavená spotřebiči, pracovní deskou z Technistone, kávovarem Nespresso a varnou konvicí, jídelním setem. Snídaňový stůl pro 4 osoby doplňují prostor, který se otevírá na prostornou lodžii s výhledem do klidného vnitrobloku, ideální pro relaxaci. Stylová koupelna je vskutku prémiová, jak se sprchovým koutem, tak s velkou vanou, elegantním umyvadlem se šuplíkovou skřínkou se zrcadlem s postranními svítidly. Toaletu doplňuje bidetová sprška. Ve vestavné skříni se ukrývá pračka a sušička. Další toaleta je v samostatné místnosti s umyvadlem a otopným žebříkem. Prostorná vstupní hala podtrhuje nadčasovou eleganci celého bytu, doplněná velkým designovým zrcadlem, nástěnnými svítidly a stylovým lustrem. Praktickou součástí je samostatná walk-in šatna s množstvím úložného prostoru. Celý byt zdobí kvalitní dřevěné parkety, které umocňují luxusní atmosféru. Součástí pronájmu je praktický sušák na prádlo, žehlící prkno a žehlička, lux, schůdky a žebřík. Ideální pro náročné klienty, kteří hledají kombinaci prestiže, pohodlí a moderního bydlení v srdci Prahy 6. Pro zajištění exkluzivní prezentace a osobní prohlídky mne prosím kontaktujte. Tento jedinečný byt čeká právě na Vás.


