Pronájem bytu, 2+kk, 50 m²
Pronájem, kompletně zrekonstruovaného bytu 2kk, Praha 7, Holešovice, ulice V Háji
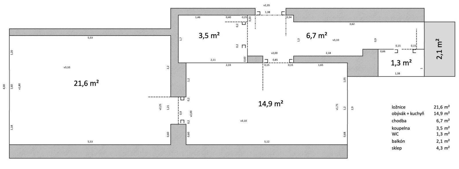
Pronájem, krásného, kompletně zrekonstruovaného bytu 2kk, 48 m2 + balkon 2,1 m2 + sklep 4,3 m2, ve 4. podlaží cihlového domu s výtahem, ve skvělé lokalitě, Praha 7, Holešovice, ulice V Háji. V bytě nové rozvody, topná tělesa, štuky, výmalba a led osvětlení. Nové podlahy vinyl a velkoformátová dlažba. Kuchyňská linka s indukční varnou deskou, horkovzdušnou troubou, myčkou a digestoří. V koupelně sprchový kout, umyvadlo v imitaci přírodního kamene, koupelnové skříňky, topný žebřík a prostor s přípojkou pro pračku. Toaleta samostatná s oknem a skříňkou. Orientace oken: ložnice na východ, obývací pokoj s kuch. koutem, balkon, chodba a wc na západ do dvora. Vytápění ohřev vody novým elektrokotlem. Dům má novou fasádu. V místě kompletní občanská vybavenost, kulturní a sportovní vyžití. Restaurace, kavárny. Procházky a cyklostezky podél Vltavy. Měsíční nájemné 28.000,-Kč + služby 2.000,-Kč + elektřina. Kauce 30.000,-Kč. Provize RK ve výši jednoho nájmu + 21%DPH. Byt je okamžitě volný.


