Pronájem - kanceláře, 17 m²
Pronájem kompaktní kanceláře 20,9 m² – Žerotínova, Praha 3 – Žižkov
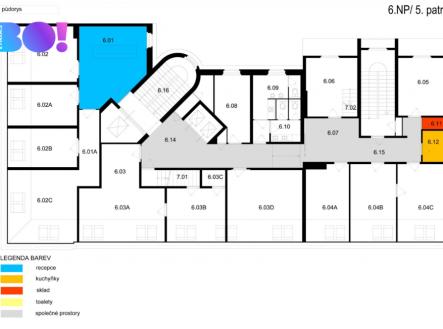
K pronájmu nabízíme kancelářský prostor 6.08 v 6. nadzemním podlaží administrativní budovy, ul. Žerotínova, Praha 3 – Žižkov. Užitná plocha kanceláře činí 17,65 m², podíl na společných prostorech 3,25 m², celková pronajímatelná plocha 20,9 m². Cena: Nájemné: 320 Kč/m²/měs. Služby (elektřina, voda, odvoz odpadu): 140 Kč/m²/měs. Prostor je ideální jako reprezentativní kancelář pro 1–3 osoby (advokát, poradce, menší tým) s využitím kompletního zázemí budovy. Součástí budovy je reprezentativní recepce s cafeterií, sdílené kuchyňky a toalety na každém patře a dvě plně vybavené jednací místnosti s kapacitou 15 a 6 osob, kde je možné zajistit i catering. Kanceláře jsou vybavené moderní infrastrukturou – optickou sítí s garantovanou symetrickou linkou, vstupním systémem na čipové karty a kamerovým systémem. Recepce je otevřená v pracovní dny od 8 do 18 hodin, k dispozici je správce objektu i možnost pravidelného úklidu kanceláří. Parkování je možné v okolí na ulici nebo na placených parkovacích místech. V blízkosti je zastávka MHD (BUS i tramvaj) s dobrým spojením do centra.


