Pronájem - komerční objekt, obchodní centrum, 1 m²
Pronájem komerční Obchodní prostory, 84㎡
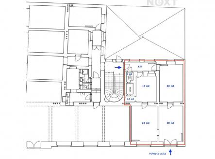
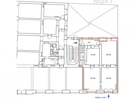
84 m² v srdci Holešovic – prostor, který si můžete přizpůsobit podle sebe. Na adrese Dukelských hrdinů 39, nedaleko Strossmayerova náměstí, nabízíme k pronájmu nebytový prostor s výlohou a vstupem přímo z ulice. Čtyři místnosti, vlastní sociální zázemí a celková výměra 84 m² dávají možnost nového prostorového uspořádání vašemu záměru – ať už plánujete kancelář, showroom, studio, salon, ordinaci nebo menší gastro provoz. Místnosti mají výšku stropu 3,5 m. Výhodou jsou také nízké provozní náklady díky vlastní plynové kotelně umístěné v suterénu domu. Navíc je možné si k tomuto prostoru pronajmout dalších 73 m² v suterénu domu – ideální jako sklad, zázemí nebo technické prostory. Kompletní rekonstrukce tohoto prostoru začne v lednu 2026 s jedinečnou příležitostí ovlivnit její podobu podle vlastních potřeb. A lokalita? Tramvaj staví před domem, metro je 5 minut chůze, centrum v podstatě za rohem. K nastěhování po rekonstrukci, předpokládaný termín dokončení je duben 2026. Velice rádi Vám zprostředkujeme prohlídku. Pro komunikaci uvádějte evidenční číslo zakázky N115412.


