Pronájem - kanceláře, 123 m²
Pronájem kancelářských prostor: Praha 5 - Hlubočepy, Strakonická
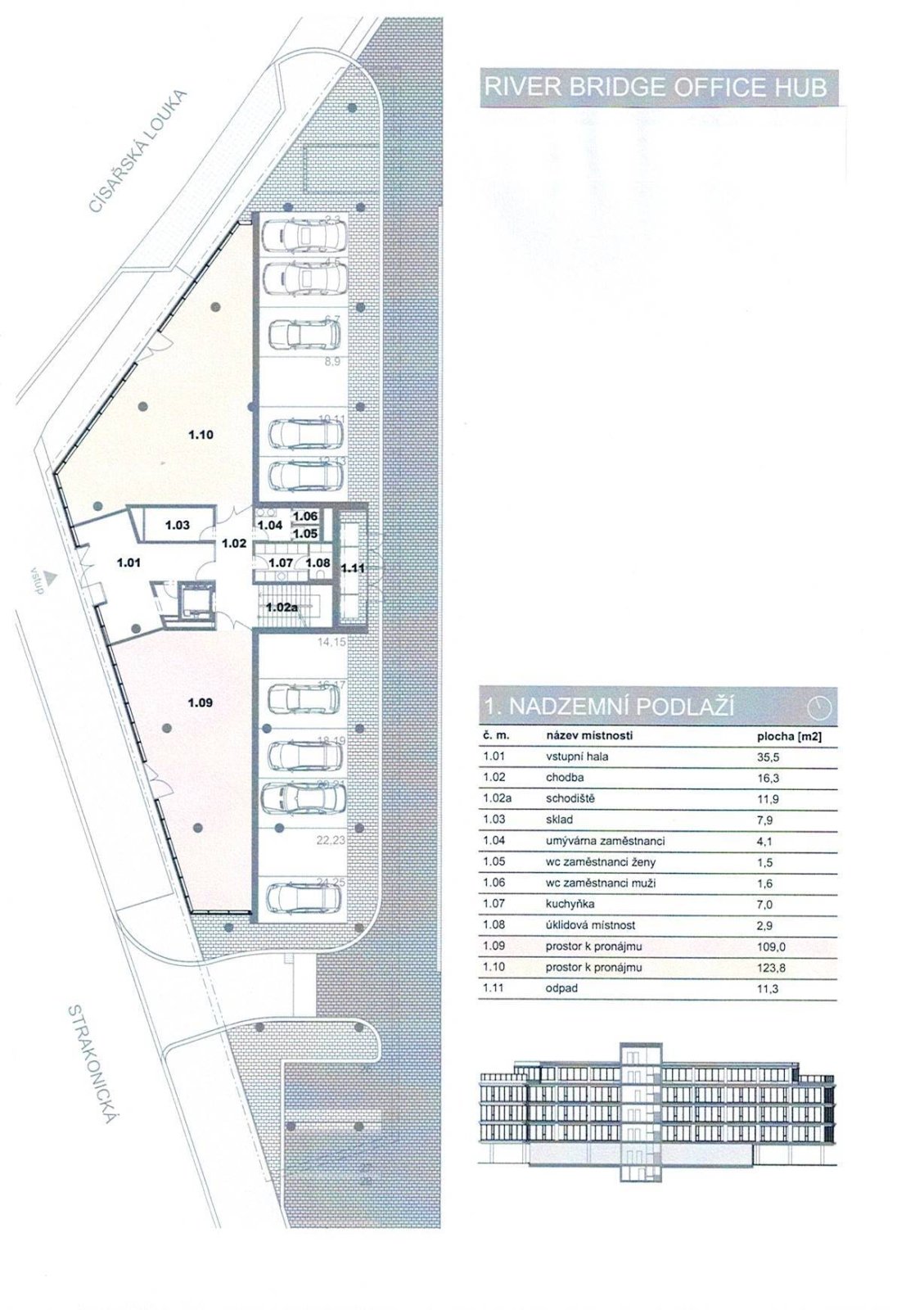
Nabízíme k pronájmu kancelářské prostory v přízemí administrativní budovy River Bridge Office Hub v atraktivní lokalitě Prahy 5. Prostory o rozloze 123,8 m2 a prostory o rozloze 109 m2 se nachází v přízemí (1NP) budovy s recepcí a 24/7 ostrahou. Součástí pronájmu je využití sociálního zázemí o rozloze 66 m2. Lokalita s veškerou občanskou vybaveností a výbornou dopravní dostupností autem i MHD. Jen pár minut od tramvajové zastávky Lihovar a několik minut od stanice metra Smíchovské nádraží. Blízký nájezd na Pražský okruh a návaznou dálniční síť. Zvýhodněné nájemné po dobu prvních 3 měsíců činí 7,99 Euro/m2/měsíc + 21%DPH, plné nájemné činí 14,99 Euro/m2/měsíc + 21% DPH. Celkové nájemné uvedené v EUR se platí v Kč, které se přepočítává dle průměru kurzů za poslední 3 měsíce. Cena za služby je 140 Kč/m2/měsíc + DPH a obsahuje: služby recepce + vrátnice, 24/7 ostraha, elektřina, vytápění, úklid a údržba společných prostor, odvoz odpadu, údržba přístupových komunikací a areálu RBOH. K dispozici je parkovací stání za extra cenu za měsíc: krytá parkovací stání pod budovou 115 Euro + DPH, venkovní parkovací stání 85 Euro + DPH, parkovací stání za mostem 1,010 Kč + DPH. Prostory jsou k nastěhování od března 2026. K dispozici více prostor k pronájmu v 1. až 3. patře budovy - pro více informací kontaktujte, prosím, naši kancelář.


