Pronájem - kanceláře, 2 169 m²
Pronájem kanceláří 2169m2 v centru Prahy, Staré město, ul. Na Příkopě
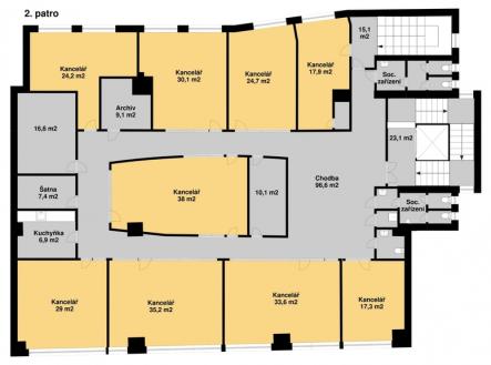
Realitní společnost GEPADR nabízí k pronájmu kanceláře o celkové ploše 2169m2 v pěti podlažích v domě v ul. Na Příkopě 29, Staré Město. Prostory jsou vhodné i pro školy. Je možné pronajmout patra i jednotlivě. 1. patro - 461m2, 12 místností od 10m2 do 62m2, 2x toalety, kuchyňka, skládek 2. patro - 442m2, 9 místností od 17m2 do 38m2, 2x toalety, kuchyňka, 3 místnosti bez oken 3. patro - 460m2 (terasa), 11 místností od 13m2 do 52m2, 3x toalety, kuchyňka, skládek 4. patro - 400m2 , 12 místností, 4x toalety, kuchyňka, 2x skládek 5. patro - 404m2 + terasa 26m2, 11 místností od 12m2 do 30m2, 5x toalety, 2x kuchyňka, skládek více viz. plánky. Vytápění je řešeno plynovým kotlem, je zde instalována klimatizace, EPS a EZS, výtah, k dispozici je ostraha 24/7. Jedná se o podnájem od České spořitelny od 1.9.2026 do 30.6.2029 s možností pokračování v nájmu (dle dohody s majitelem). Cena podnájmu do 30.6. 2029 činí 11,36 EUR/m2/měsíc. Více informací na uvedených kontaktech.


