Pronájem - kanceláře, 100 m²
Pronájem kanceláře 119 m2 Lednická, Praha
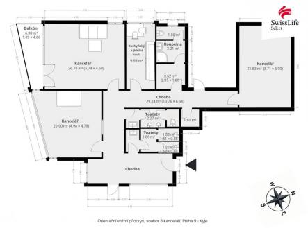
REZERVOVÁNO - Pronájem velmi pěkných kancelářských prostor v Praze 9 - Kyje. Hledáte kvalitní neprůchozí kanceláře v klidné lokalitě s dobrou dostupností? Připravili jsme pro vás pronájem souboru 3 kanceláří s příslušenstvím o užitné ploše 100 m2 v samostatně stojící budově z roku 2003. Kanceláře vás zaujmou nejen svým moderním a praktickým uspořádáním, ale také nízkými provozními náklady. Tento prostor je ideální pro podnikatele, kteří hledají atraktivní a pohodlné pracovní prostředí. Všechny kanceláře jsou vybaveny klimatizačními jednotkami pro maximální komfort v průběhu celého roku. Nájemné 25.400 Kč bez DPH/ měsíc (kanceláře + 2 parkovací místa á 690 Kč bez DPH / měsíc) + měsíční zálohy za energie za služby + jistota / kauce 50.000 Kč + odměna realitní kanceláře. Soubor 3 samostatných, neprůchozích nezařízených kanceláří je situován do 2. nadzemního podlaží budovy s výtahem. Centrální chodba (19 m2) propojuje všechny pracovní prostory. Jako součást kanceláří najdete vybavený kuchyňský a jídelní kout, dále koupelnu se sprchovým koutem a toaletou, pánské a dámské toalety. Zateplená budova s výtahem je udržovaná a je ve velmi dobrém technickém stavu. Přístup do objektu je prostřednictvím bezpečnostních čipů. Lokalita a dopravní dostupnost: Nemovitost se nachází v oblíbené lokalitě Praha 9 - Kyje, která je snadno dostupná jak autem, tak veřejnou dopravou. Výhodou je klidné prostředí, které poskytuje ideální podmínky pro práci, a zároveň je to poloha s dobrým dopravním napojením. Proč si vybrat právě tento prostor? - samostatně stojící budova: soukromí a nezávislost, ideální pro firmy, které chtějí mít veškeré zázemí pro sebe. - reprezentativní prostory: velmi pěkné kanceláře ve skvělém stavu. - praktické a moderní: nezařízené kanceláře jsou vybaveny klimatizacemi, koupelnou se sprchovým koutem, kuchyňský a jídelním koutem. - bezpečnost: objekt je zajištěn moderním zabezpečovacím systémem s přístupem na čip. - úsporný provoz: díky nově vybudované zateplené budově a nízkým provozním nákladům ušetříte na energiích. Nájemné 25.400 Kč bez DPH/ měsíc (kanceláře + 2 parkovací místa á 690 Kč bez DPH / měsíc), plyn / vytápění: 1.400 Kč bez DPH / měsíc, elektřina 2.000 Kč bez DPH / měsíc, vodné / stočné: 450 Kč bez DPH / měsíc, společná elektřina + výtah 135 Kč bez DPH / měsíc, úklid společných prostor: 200 Kč bez DPH / měsíc, odvoz odpadu si sjednává každý nájemce samostatně, parkování: k dispozici jsou 2 parkovací místa přímo u budovy na štěrkovém parkovišti + odměna realitní kanceláře. Pokud vás tato výborná nabídka zaujala, neváhejte a kontaktujte nás pro více informací nebo sjednání prohlídky. Tato kancelářská budova nabízí optimální kombinaci komfortu, funkčnosti a nízkých nákladů, což z ní činí skvělý prostor pro vaše podnikání.


