Pronájem bytu, 3+kk, 75 m²
Pronájem bytu Flat for rent 3+kk, Waltariho, Hloubětín, 75 m2
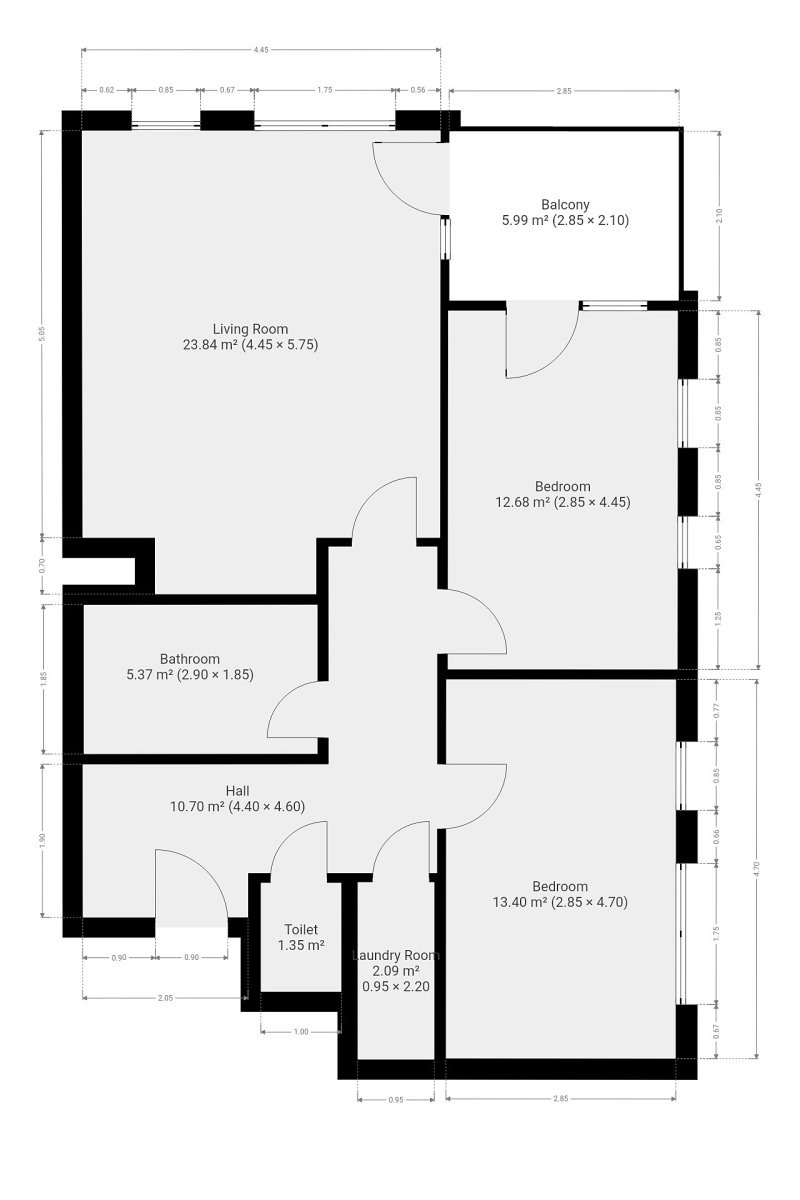
K dlouhodobému podnájmu nabízíme velmi příjemný a světlý byt o dispozici 3+kk, který se nachází ve 2. patře udržovaného moderního domu v klidné rezidenční zóně Praha 9 – Hloubětín. Na celkové ploše 75 m² naleznete promyšlené zázemí, které doplňuje prostorný balkon, praktický sklep a vlastní parkovací stání v podzemní garáži, což zajišťuje maximální komfort pro váš každodenní život. Interiér je nabízen jako částečně vybavený, což vám dává skvělou příležitost doladit si domov podle vlastního vkusu a potřeb. Srdcem bytu je obývací pokoj s pohodlnou sedací soupravou a konferenčním stolkem, na který plynule navazuje moderní kuchyňský kout. Ten je plně vybaven všemi potřebnými spotřebiči včetně lednice s mrazákem, myčky, varné desky, elektrické i mikrovlnné trouby a digestoře, přičemž nechybí ani jídelní kout pro společné chvíle. Soukromou část bytu tvoří dvě samostatné ložnice – jedna je již vybavena manželskou postelí, druhá pak pracovním stolem a úložnými prostory, takže může skvěle sloužit jako dětský pokoj nebo klidná pracovna. Koupelna disponuje vanou i dostatkem úložného prostoru a toaleta je pro větší soukromí umístěna samostatně. Velkou výhodou je také oddělená místnost s pračkou a sušičkou. Okolí domu nabízí kompletní občanskou vybavenost a vyžití pro celou rodinu. V docházkové vzdálenosti se nacházejí supermarkety Lidl a Billa, řada příjemných kaváren, restaurací i školy a školky. Pro milovníky aktivního odpočinku je ideální bezprostřední blízkost parku U Rokytky, který je vzdálen jen pár minut chůze a nabízí krásné trasy pro procházky či sport. Perfektní spojení s městem zajišťuje blízká tramvajová zastávka a stanice metra linky B – Hloubětín. Byt je volný k nastěhování ihned. Energetická třída: G (průkaz nedodán).


