Pronájem bytu, 4+1, 103 m²
Pronájem bytu 4+1/T 103m2 se zahradou Na Výspě Praha 4 Braník
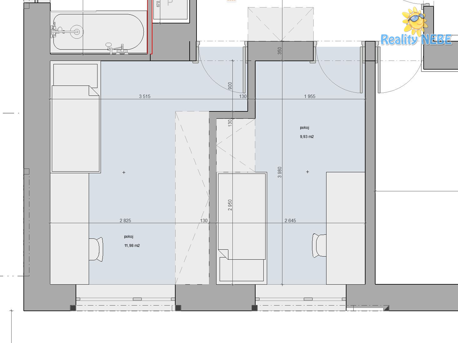
Pronájem prostorného bytu v RD 4+1 103m2 s výstupem na terasu a do zahrady určené jen vám. Byt na ulici Na Výspě Praha 4 Braník je v blízkosti OC Novodvorská. Byt má vstupní chodbu s dlažbou, samostatnou kuchyň s rohovou linkou a spotřebiči včetně myčky, Koupelnu s vanou a zástěnou, wc, přípojkou na pračku, žebrovým topením, oknem, dále 3x samostatné neprůchozí pokoje a reprezentativní obývací pokoj s krbem a výstupem na terasu a zahradu vyčleněnou jen pro tento byt. Vybaven stylovým nábytkem, lustrem. Uzavíratelná garáž (6x3,5m2)na DO za příplatek, parkovací venkovní stání za přípatek. Dům má kamerový systém. Vytápění novou kotelnou v domě. Volný od ihned. Vhodný pro pracující nekuřáky bez dluhů.


