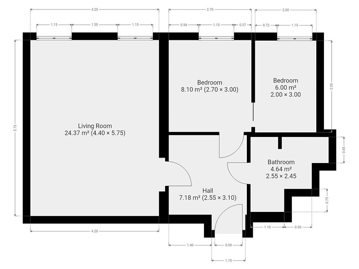
Pronájem bytu, 3+kk, 51 m²
Pronájem bytu 3+kk, V lesíčku, Smíchov, 28900 Kč/měs, 51 m2
K dlouhodobému podnájmu nabízíme světlý byt o dispozici 3+kk v oblíbené lokalitě Praha 5 - Smíchov. Byt o celkové výměře 51 m² se nachází v 5. patře zděného bytového domu s výtahem. Byt se nabízí volný k vybavení dle vlastních představ. Kuchyňský kout disponuje lednicí s mrazákem, myčkou, elektrickou troubou, varnou deskou, mikrovlnnou troubou a digestoří. Součástí obývací části je knihovna. V ložnici najdeme vestavěnou skříň, druhý pokoj je nezařízený. V koupelně je sprchový kout, zrcadlo, umyvadlo, pračka a WC. V předsíni je věšák a vestavěná skříň. V okolí domu se nachází nespočet restaurací a kaváren, supermarkety, drogerie, Obchodní centrum Nový Smíchov, pošta, poliklinika, lékárna, muzea a galerie, městská knihovna, Švandovo divadlo, oblíbené parky (Zahrada Kinských, Nebozízek, Petřínské sady, Park Sacré Coeur, Park Kampa) atd. Pár minut chůze od domu je vzdálena autobusová a tramvajová zastávka Švandovo divadlo a v docházkové vzdálenosti je stanice metra B - Anděl. Majitel preferuje zájemce bez domácích mazlíčků. Byt je volný k nastěhování ihned. Energetická třída: G (průkaz nedodán).


