Pronájem bytu, 3+kk, 54 m²
Pronájem bytu 3+kk, Práčská, Záběhlice, 54 m2
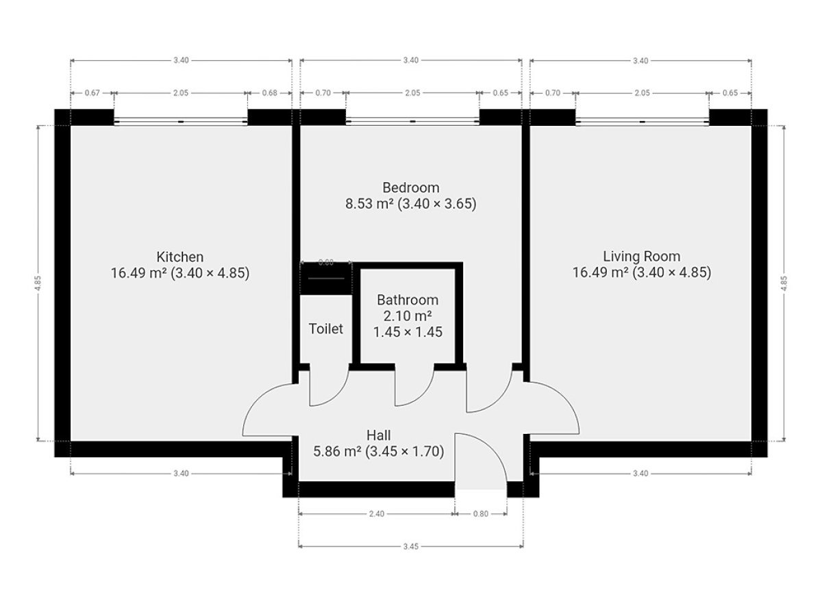
Nabízíme k dlouhodobému podnájmu velmi příjemný a světlý byt o dispozici 3+kk, který se nachází v sedmém patře udržovaného panelového domu s výtahem v klidné části Prahy 10. Byt o celkové výměře 54 m² působí díky svému umístění ve vyšším patře vzdušně a nabízí klidné bydlení s praktickým sklepem pro uložení sezónních věcí. Interiér je nabízen jako částečně vybavený, což budoucím nájemníkům poskytuje ideální příležitost zařídit si domov podle vlastního vkusu. Kuchyňská linka disponuje všemi základními spotřebiči včetně lednice s mrazákem, elektrické trouby, sporáku a digestoře. Dispozice zahrnuje dva samostatné pokoje, které lze variabilně využít jako ložnici, dětský pokoj nebo pracovnu. Koupelna je vybavena sprchovým koutem a umyvadlem, přičemž toaleta je pro větší soukromí umístěna samostatně. Okolí domu vyniká kompletní občanskou vybaveností, která uspokojí všechny vaše potřeby. Jen pár kroků od vchodu se nachází supermarket Penny, restaurace a v blízkém dosahu také obchodní centrum VIVO! Hostivař. Rodiny ocení dostupnost škol a školek, v okolí nechybí ani lékařská péče či pošta. Pro milovníky aktivního odpočinku a přírody je velkým benefitem sousedství sportovního areálu Hamr a přírodního parku Meandry Botiče, který je jako stvořený pro procházky či sport. Díky blízkým zastávkám autobusů je zajištěna výborná dopravní dostupnost do ostatních částí Prahy. Byt je volný k nastěhování ihned. Energetická třída: G (průkaz nedodán).


