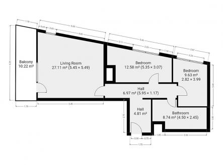
Pronájem bytu, 3+kk, 70 m²
Pronájem bytu 3+kk, Na Výspě, Braník, 28 000 Kč/měs, 70 m2
K dlouhodobému podnájmu nabízíme krásný moderní byt 3+kk s balkonem a garážovým stáním v klidné lokalitě Braník. Byt o celkové výměře 70 m² se nachází ve 4. patře cihlového domu. Byt se nabízí částečně vybavený. V obývací části je k dispozici sedací souprava. Kuchyně je vybavena lednicí, myčkou, elektrickou troubou, varnou deskou a digestoří. V prostorné koupelně je sprchový kout, umyvadlo a toaleta. V ložnici, pokoji i na chodbě se nachází vestavěná skříň. V okolí domu najdete supermarket Billa, restaurace, obchody, lékaře a další služby. Obchodní centrum Novo Plaza je vzdáleno pět minut pěšky. Autobusová zastávka Filosofská je vzdálena pouze dvě minuty chůze. Garážové stání není v ceně. 2.000 Kč Byt je k dispozici ihned.


