Pronájem bytu, 3+kk, 68 m²
Pronájem bytu 3+kk, Jílovská ulice - Praha 4, částečně zařízený, lodžie
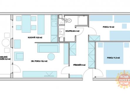
Nabízíme k pronájmu panelákový byt 3+kk umístěný v šestém patře cihlového domu s výtahem v ulici Jílovská, Praha 4. Celková užitná plocha bytu činí 62 m2 + 6 m2 lodžie. Byt je aktuálně vybavený dle fotografií - lze pronajmout i bez vybavení. Sestává z obývacího pokoje s kuchyňským koutem a lodžií, dvou samostatných pokojů, koupelny s WC a sprchou. Byt je po částečné rekonstrukci (koupelna a kuchyně). Vytápění a ohřev vody je centrální. Kuchyně je vybavena sklokeramickou varnou deskou a el. troubou, chladničkou s mrazákem, pračkou. V předsíni jsou původní vestavné skříně. Klidná lokalita. Dostupnost MHD - 170 m autobusová zastávka sídliště Novodvorská (linky autobusů č. 106, 196, 197, 901). Nákupní centrum Novo Plaza, Hypermarket Tesco - 250 m, BILLA, drogerie TETA, pošta, lékárna. Cena nájmu - 22.000 Kč + energie a služby, kauce 30.000 Kč. Prosíme kontaktovat přes poptávkový formulář s uvedením počtu osob a termínu nastěhování.


