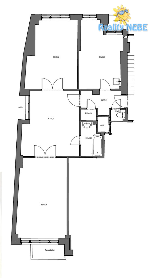
Pronájem bytu, 3+kk, 89 m²
Pronájem bytu 3+kk 89m2 dva balkony Štěpánská Praha 1
Nabízíme k dlouhodobému pronájmu byt 3+kk (3+1) o velikosti 89m2 se dvěma balkony ve 4. patře (5/6NP) cihlového domu jen pár kroků od Václavského náměstí v ulici Štěpánská. Byt se skládá ze dvou samostatných neprůchozích ložnic, průchozího obývacího pokoje a samostatné kuchyně (zařízené pouze kuchyňskou linkou s elektrickou troubou, varnou deskou, lednice s mrazákem). Dále koupelna s vanou a pračkou, WC je samostatné, v bytě ještě menší komora. Volný k nastěhování ihned, o více informací a prohlídky volejte kdykoli.


