Pronájem bytu, 3+kk, 46 m²
Pronájem bytu 3+1, Plzeňská, Smíchov, 46 m2
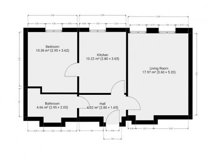
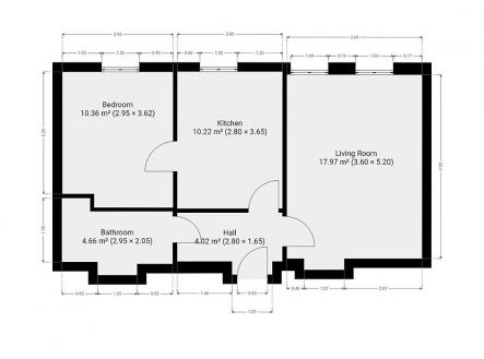
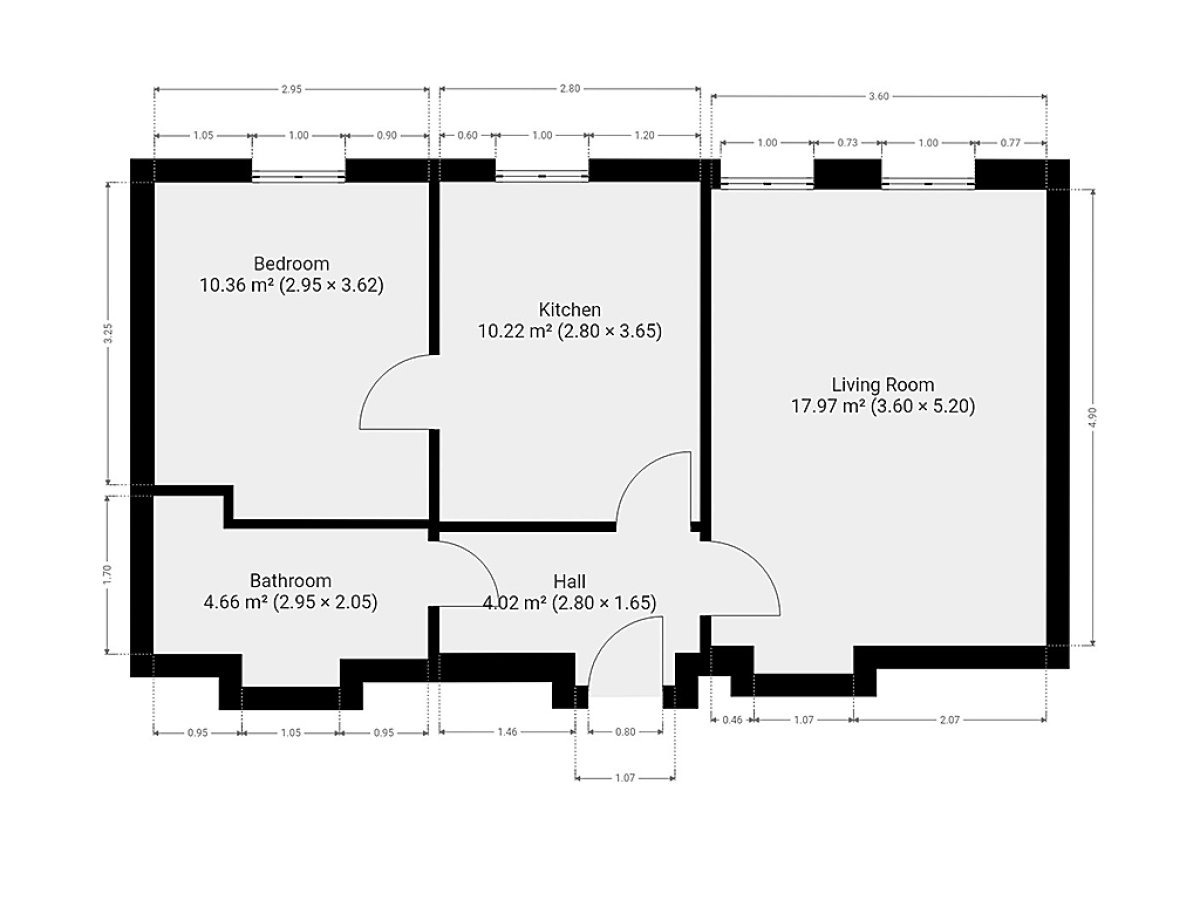
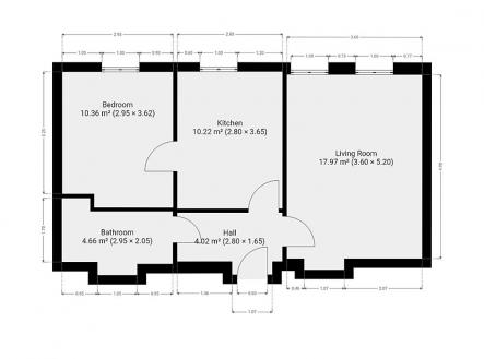
K dlouhodobému podnájmu Vám nabízíme zrekonstruovaný, kompletně zařízený byt o dispozici 3kk přímo u tramvajové zastávky "Bertramka" . Byt se nachází ve 3.patře udržovaného, cihlového domu bez výtahu. Skládá se ze vstupní chodby, společné koupelny s toaletou, která je zařízena vanou, pračkou, sušičkou a umyvadlem, ložnice, obývacího pokoje a kuchyně. ta je zařízena všemi spotřebiči - lednice, myčka, varná deska, trouba a digestoř. Byt se nabízí vybavený tak, jak vidíte na fotografií. Nachází se v lokalitě s výbornou dopravní dostupností MHD na Smíchov - pouze jednu stanici tramvají. Byt je k dispozici k nastěhování od 10.12.2025


