Pronájem bytu, 3+1, 83 m²
Pronájem bytu 3+1, Brandlova, 24950 Kč/měs Chodov, 83 m2
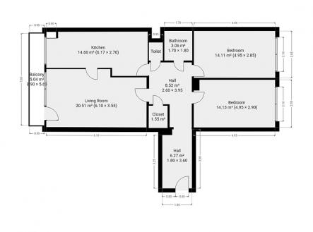
K dlouhodobému podnájmu vám nabízíme tento částečně zařízený byt 3+1 se zaklenou lodžií. Byt se nachází v lokalitě s veškerou občanskou vybaveností a vynikající dopravní dostupností. Pár kroku od domu se nachází hypermarket Albert, lékárna a několik základních i mateřských škol. V pěší dostupnosti je stanice metra C - Háje a autobusová zastávka Hněvkovského nebo Prašná. Interiér bytu tvoří centrální chodba vybavena vybavena vestavnými skříněmi, obývací pokoj se vstupem na zasklenou lodžii, ložnice a dětský pokoj s další, velkou šatní skříní. Byt si déle můžete zařídit plně dle svých představ a potřeb. Koupelna je vybavena vanou, umyvadlem. Toaleta je umístěna samostatně. Kuchyně je vybavena troubou, myčkou, lednicí, digestoří a plynovým sporákem. Zálohové platby už obsahují zálohy na elektřinu a pojištění domácnosti. Byt je k dispozici od 1.12.2025.


