Pronájem bytu, 3+1, 79 m²
Pronájem bytu 3+1 72 m² s lodžií, šatnou a garáží, Praha - Michle
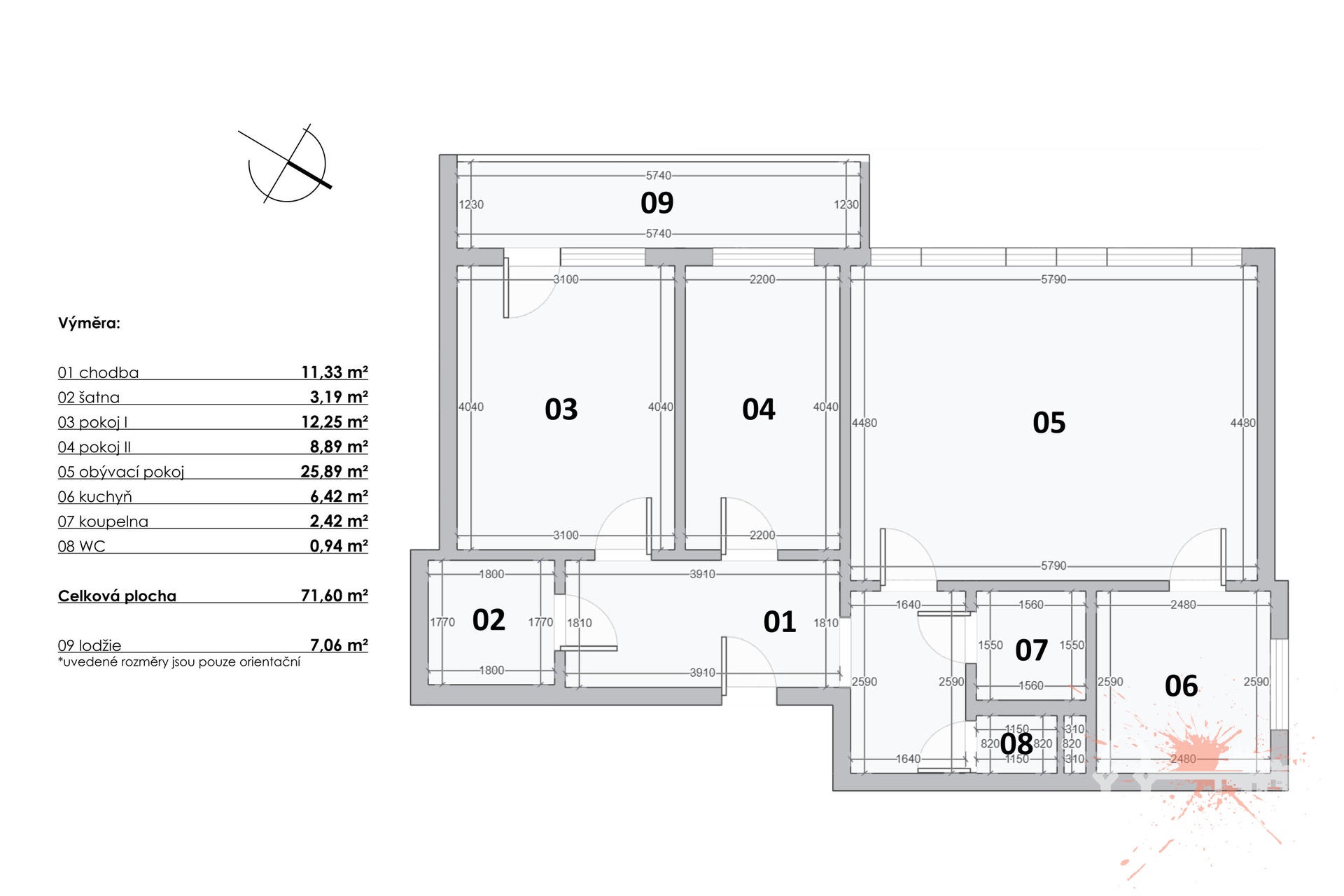
Jsou místa, kam se člověk vrací rád. Ne kvůli adrese, ale kvůli tomu, jak se tu žije. Tento třípokojový byt s kuchyní v ulici Na Líše nabízí prostor, kde všechno má své místo a každodenní život plyne hladce. Dispozice je přehledná a praktická. Tři samostatné pokoje poskytují dostatek prostoru pro soukromí i společné chvíle. Samostatná šatna v bytě přináší pořádek a uzamykatelná komora na chodbě nabízí další úložný prostor. Lodžie s výhledem je ideálním místem pro krátký oddech nebo ranní kávu. Byt je částečně vybavený – kuchyňská linka, lednice, pračka, sedací souprava a jídelní stůl se židlemi jsou připravené k okamžitému využití. Přes ulici je k dispozici garáž, která zajišťuje pohodlné parkování. Lokalita nabízí rovnováhu mezi klidem a dostupností. Autobusová zastávka V Zápolí je 3 minuty pěšky a stanice metra Kačerov (linka C) zhruba 9 minut chůze. V okolí jsou obchody, služby, školy i parky vhodné pro procházky a trávení volného času. Aby byl váš vstup do nového bydlení co nejpohodlnější, uvádím informace k měsíčním platbám. Měsíční nájemné činí 27 000 Kč a zálohy na služby jsou 4 193 Kč pro jednu osobu nebo 6 200 Kč při obsazení čtyř osob. Elektřina a plyn se převádí na nájemníka. Součástí nastěhování je také dvakrát vratná jistota 27 000 Kč a provize realitnímu zprostředkovateli 27 000 Kč. Pro úspěšný start v novém bydlení představuje celková prvotní investice 112 193 Kč při jedné osobě nebo 114 200 Kč při čtyřech osobách, zahrnující první nájemné se zálohami, jistotu a provizi. Byt nabízí praktické a pohodlné zázemí – místo, kde začíná nový životní příběh. Těším se na prohlídku, při níž Vám byt ráda představím.


