Pronájem bytu, 2+kk, 46 m²
Pronájem bytu 2+kk, Šiškova, Kobylisy, 46 m2
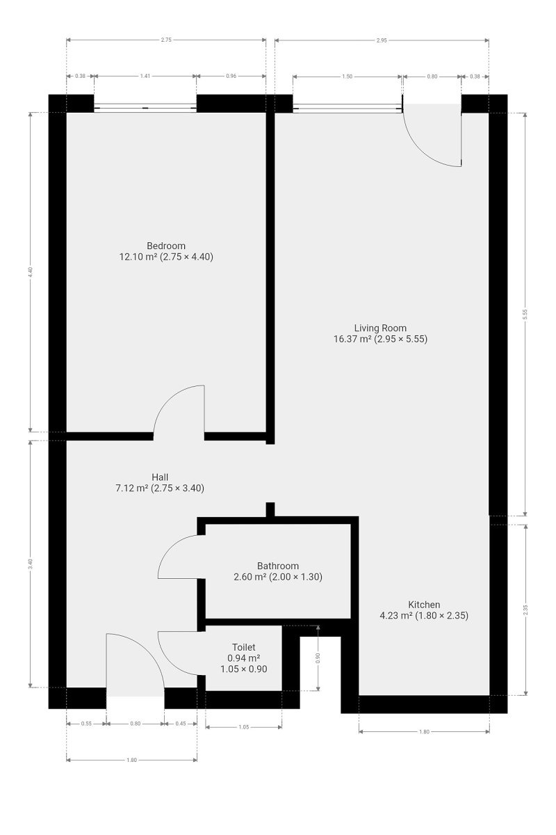
Nabízíme k dlouhodobému podnájmu příjemný a velmi světlý byt o dispozici 2+kk v klidné a vyhledávané lokalitě Praha 8 – Kobylisy. Byt s celkovou výměrou 46 m² se nachází v pátém patře udržovaného panelového domu s výtahem a disponuje také praktickým balkonem, který rozšiřuje obytný prostor o místo pro odpočinek na čerstvém vzduchu. Interiér je nabízen jako částečně vybavený, což vám dává skvělou možnost doladit si domov podle vlastního vkusu. Kuchyně je plně funkční a vybavená lednicí s mrazákem, elektrickou troubou, varnou deskou, digestoří i myčkou nádobí. V obývacím pokoji na vás čeká pohodlná sedací souprava, konferenční stolek a úložné prostory. Druhý, samostatný pokoj je zařízen jako ložnice a poskytuje dostatek soukromí. Koupelna se sprchovým koutem je vybavena pračkou, přičemž toaleta je pro větší komfort řešena samostatně. Lokalita vyniká perfektní kombinací přírody a městské dostupnosti. Jen pár kroků od domu se rozkládá lesopark Ďáblický háj, ideální pro sport i relaxaci. Veškerou občanskou vybavenost včetně supermarketu Albert, pošty, lékařské péče, restaurací a sportovišť máte v bezprostřední docházkové vzdálenosti. Výborné spojení s centrem Prahy zajišťuje blízká stanice metra linky C – Ládví a okolní zastávky tramvají i autobusů. Byt je volný k nastěhování ihned. Energetická třída: G (průkaz nedodán).


