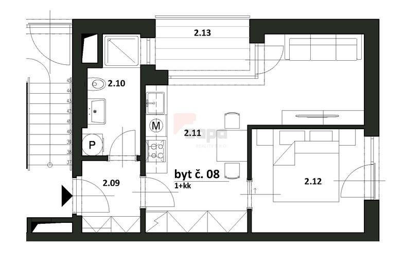
Pronájem bytu, 2+kk, 44 m²
Pronájem bytu 2+kk/L/G 44 m2 v novostavbě, Praha 8 Bohnice, nezařízeno
Exkluzivně nabízíme pronájem bytu 2+kk s lodžií a sklepem o celkové výměře 44 m2 spolu s venkovním parkovacím stáním, v novostavbě, Praha 8 Bohnice, Pekařova ulice. Vybavení a dispozice: - byt ve 2. nadzemním podlaží novostavby s výtahem je vybaven kuchyňskou linkou Ikea s varnou deskou, horkovzdušnou troubou a myčkou, - v předsíni je instalována vestavěná skříň na míru, - v místnostech je plovoucí podlaha, v koupelně dlažba, topení je podlahové, - byt je tichý, se severní a východní orientací oken, - k bytu náleží vyhrazené parkovací stání (zahrnuto v ceně nájmu) před domem a sklep. Lokalita a dostupnost: - domy v tomto projektu mají příjezd do areálu přes bránu na dálkové ovládání, - v okolí je kompletní občanská vybavenost včetně Čimického a Ďáblického háje, - autobusová zastávka je vzdálena 8 minut chůze a za 7 minut se dostanete na metro Kobylisy. Byt je vhodný pro jednu nebo dvě osoby - nekuřácký pár bez dětí a domácích mazlíčků, s trvalým pobytem v ČR. Měsíční poplatky pro jednu osobu činí 4.000,-Kč včetně elektřiny, pro dvě osoby 5.900,- Kč včetně elektřiny. Byt je volný po dohodě, prohlídky jsou možné od 2.2.2026. Při podpisu nájemní smlouvy je třeba složit jistotu 35.000,-Kč a provizi 22.000,-Kč.


