Pronájem bytu, 2+kk, 41 m²
Pronájem bytu 2+kk, Benkova, Chodov, 23200 Kč/měs, 41 m2
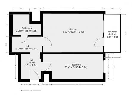
K dlouhodobému podnájmu Vám nabízíme hezký a nově zrekonstruovaný byt 2+kk. Byt se nachází ve velmi klidné, přesto dobře dopravně dostupné lokalitě v 8. patře panelového domu s výtahem na Chodově. Skládá se ze vstupní chodby, pokoje, hezké koupelny se sprchovým koutem, umyvadlem a toaletou. Kuchyně je nová, velmi prostorná a vybavena veškerými spotřebiči. Byt si můžete zařídit podle svých představ. K bytu náleží prostorný balkon a sklepní koje. Nachází se v lokalitě s kompletní občanskou vybaveností . Autobusové zastávky Benkova, Mokrá, Chodovská tvrz jsou od domu necelé dvě minuty chůze. Metro C Chodov je vzdáleno 5 minut autobusem. Dále je v blízkosti několik menších obchodů s potravinami a dalšími službami. Byt je k dispozici ihned.


