Pronájem bytu, 2+kk, 41 m²
Pronájem bytu 2+kk, Benkova, Chodov, 22000 Kč/měs, 41 m2
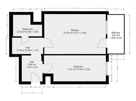
K dlouhodobému podnájmu nabízíme hezký, čerstvě zrekonstruovaný byt o dispozici 2+kk, který se nachází ve velmi klidné a vyhledávané lokalitě pražského Chodova. Byt je situován v 9. patře revitalizovaného panelového domu s výtahem, což zajišťuje nejen dostatek soukromí, ale i příjemný výhled. K bytu náleží také prostorný balkon a praktická sklepní kóje pro uložení sezónních věcí. Interiér bytu prošel vkusnou rekonstrukcí a je připraven k tomu, aby si jej budoucí nájemníci dovybavili podle vlastních představ. Srdcem domova je nová, velmi prostorná kuchyně, která je kompletně osazena veškerými moderními spotřebiči. Dispozice dále zahrnuje vstupní chodbu, samostatný pokoj a moderní koupelnu se sprchovým koutem, umyvadlem a toaletou. Celý prostor působí svěžím a čistým dojmem. Lokalita vyniká skvělou dopravní dostupností a kompletní občanskou vybaveností v bezprostředním okolí. Jen dvě minuty chůze od domu se nacházejí autobusové zastávky Benkova, Mokrá nebo Chodovská tvrz, odkud se za pouhých 5 minut dostanete ke stanici metra C Chodov a k oblíbenému obchodnímu centru. V blízkosti domu najdete také menší obchody s potravinami, služby a dostatek prostoru pro volnočasové aktivity. Byt je volný a připravený k nastěhování od 1. března 2026.


