Pronájem bytu, 2+kk, 65 m²
Pronájem bytu 2+kk, 65 m2, Praha 6 Ruzyně, parkovací stání na pozemku za plotem
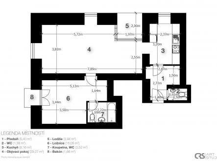
Nabízím vám velký moderní byt 2+kk k pronájmu s výměrou 65 m2 + terasa + vlastní parkovací stání za plotem v ulici Drnovská 20/45, Praha 6 - Ruzyně. Byt se nachází v prvním patře (druhé nadzemní podlaží) historického, opraveného bytového domu po kompletní revitalizaci. Byt obsahuje velký obývací pokoj s kuchyňským koutem, a plně vybavenou kuchyní, krytou terasu, ložnici, chodbu, koupelnu a wc. Nájemné je 23.000,- Kč / měsíčně + zálohy na 4.785,- zálohy na energie a služby vč. elektřiny a plynu. Přesný rozpis je uveden ve fotografiích u této nabídky. Byt je v perfektním stavu a jedná se o velmi dobře udržovaný byt po rekonstrukci. Byt bude volný k nastěhování od 1.4.2026. Stav a vybavení bytu odpovídá tomu, jak je uveden na fotkách. Při nastěhování se platí 27.785,- nájemné na první měsíc + 27.785,- kauce + 27.785,- provize.


