Pronájem bytu, 2+kk, 52 m²
Pronájem bytu 2+kk, 52 m2 + terasa 26 m2, Praha 4 - Nusle, ul. Na Pankráci
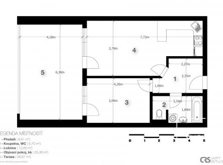
Nabízíme k pronájmu velmi příjemný byt 2+kk o podlahové ploše 52 m² s opravdu nadstandardní terasou 26 m², v atraktivní lokalitě Praha 4 – Nusle, ulice Na Pankráci 404/30a. Byt má prakticky řešenou dispozici: obývací pokoj s kuchyňským koutem, samostatnou ložnici, koupelnu a předsíň s místem pro úložné řešení. Největší předností je velká terasa, která výrazně rozšiřuje obytný prostor – ideální na ranní kávu, večerní posezení i domácí „mini zahrádku“. Lokalita Na Pankráci nabízí skvělou občanskou vybavenost a výbornou dopravní dostupnost. V okolí najdete obchody, restaurace, služby i možnosti sportu a relaxu. Do centra se dostanete rychle MHD i autem. Byt je vhodný pro jednotlivce nebo pár, kteří hledají moderní bydlení s velkým venkovním prostorem v žádané části Prahy. Kromě vybavené kuchyně není vybavený, tak jak je vyobrazeno na fotografiích. Nájemné je 22.500,- Kč / měsíčně + zálohy na 5.354,- zálohy na energie a služby, které se skládají z: 1500,- / měs. elektřina v bytě 344,- / měs. studená voda 1175,- / měs. teplá voda 856,- / měs. topení 297,- / měs. úklid společných částí domu 153,- /měs. elektřina společných částí domu 63,- / měs. výtah 132,-/měs. odvoz odpadků 834,- domovnické služby Byt je připravený k nastěhování. Při nastěhování se platí 27.854,- nájemné na první měsíc + 27.854,- kauce + 27.854,-provize.


