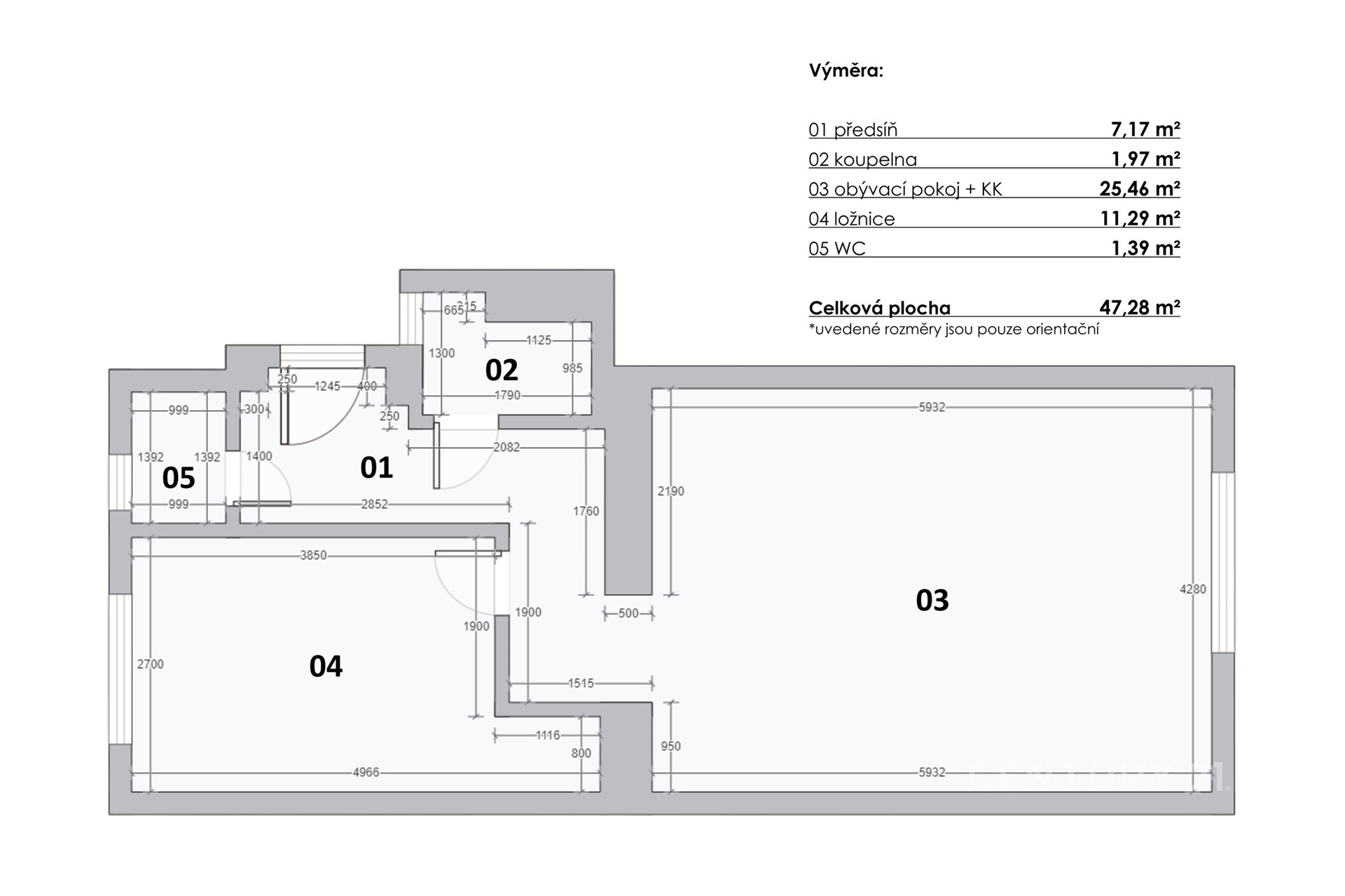
Pronájem bytu, 2+kk, 47 m²
Pronájem bytu 2+KK 47m2, Průběžná, Praha Strašnice
K okamžitému pronájmu nabízíme byt 2+KK o výměře 47m2, ve 3. nadzemním podlaží domu v Praze 10 Strašnicích, ulice Průběžná. Byt je po kompletní rekonstrukci a díky praktickému dispozičnímu řešení nabízí moderní a komfortní bydlení. Součástí pronájmu je sklepní kóje o velikosti 2 m2. Sklepní prostor domu právě prochází úpravami. Světlý a vzdušný obývací prostor je vybaven zcela novou kuchyňskou linkou včetně spotřebičů myčky, trouby a sklokeramické varné desky. V kuchyňské lince je dále zabudovaná pračka a součástí vybavení je také volně stojící lednice s mrazákem. Z ložnice je výhled do klidného, zeleného vnitrobloku a nabízí příjemné soukromí. Prostor ložnice doplňuje moderní vestavěná skříň s vysouvacím systémem. Ve všech místnostech, včetně koupelny a chodby, je elektrické podlahové vytápění s digitální regulací pro maximální pohodlí. Lokalita Strašnic je velmi žádaná díky výborné dostupnosti a kompletní občanské vybavenosti v okolí. Byt je připraven k okamžitému nastěhování Výše nájemného: 24.900 Kč/měs Zúčtovatelné zálohy: 3.500 Kč/měs (zálohy zahrnují vodné, stočné, elektřinu) Výše jistoty (kauce): 24.900 Kč Provize RK: 10.000 Kč + DPH


